




100,66 m² (wg PN-70/B-02365)
108,84 m² (wg PN-ISO 9836:1997)
| Ep | 69,9 kWh/(m2) | |
| Ek | 57,9 kWh/(m2 rok) | |
| EUCO | 48,6 kWh/(m2 rok) |
Projekt domu Zosia 3 to jednorodzinny, parterowy domek z poddaszem zagospodarowanym na cele użytkowe. Całość zwieńczona jest dachem dwuspadowym. Powierzchnia użytkowa domu wynosi 100 m2 (kubatura 434 m3). Dom Zosia 3 zaprojektowany jest na planie kwadratu o wymiarach 9,5 x 9,5 m. Minimalna wielkość działki na jakiej można zrealizować projekt ma wymiary: 17,50 x 17,50 m.
Budynek ma prostą konstrukcję. Zaplanowany jest na planie kwadratu. Jasną elewację ozdabiają elementy drewniane. Dom przykryty jest dwuspadowym dachem o kącie nachylenia 30 stopni. Wejście jak i taras chronione są od deszczu czy nadmiernego słońca delikatnym zadaszeniem wyłaniającym się z dachu. Dom nawiązuje do stylu tradycyjnego i wykonany jest w technologii murowanej. Architektura zewnętrzna to zgrabna bryła w skali człowieka z łagodnie schodzącymi połaciami dachów. Dom Zosia 3 ze względu na uniwersalny styl i bezpretensjonalną bryłę prezentuje się wyśmienicie zarówno w krajobrazie miejskim jak i wiejskim.
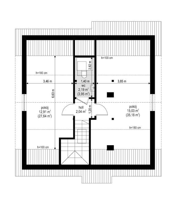
Pierwszym pomieszczeniem, w którym znajdziemy się po przekroczeniu progu jest sień. Do niej przylega kotłownia z piecem gazowym. Z holu dostajemy się do części dziennej i nocnej. Prawą część budynku zajmuje część dzienna. Po lewej stronie od wiatrołapu są zaplanowane trzy ustawne sypialnie, które tworzą część nocną. Pokój dzienny to miejsce nie tylko wypoczynku, ale przestrzeń do wspólnych biesiad w jadalni. Do salonu przylega dyskretnie schowana za ścianą kominkowo – telewizyjną kuchnia. Program użytkowy parteru uzupełnia łazienka. Na poddaszu domu Zosia 3 wydzielono jeszcze dwie sypialnie, a pomiędzy nimi umieszczono WC. W zależności od preferencji Inwestora, część na poddaszu można zaaranżować jako przestrzenie biurowe.
Projekt domu Zosia 3 nadaje się idealnie dla wieloosobowej rodziny chcącej niewielkim kosztem zbudować swój azyl. Ten projekt to również świetna propozycja na dom wakacyjny - dzięki dużej ilości pokoi zmieścimy wielu gości. Budynek ma prostą, nieskomplikowaną w budowie bryłę i konstrukcję. Jest niedrogi w budowie i w późniejszej eksploatacji. Dzięki dobrym izolacjom i zwartej bryle wydatki na ogrzewanie będą niewielkie. Istnieje możliwość dostosowania projektu do standardu NF 40.
W gotowym projekcie domu Zosia 3 można wprowadzać zmiany, a pracownia do każdej dokumentacji dołącza bezpłatnie „Zgodę na zmiany", dzięki której modyfikacje do projektu Zosia 3 może wprowadzić każdy projektant z uprawnieniami w Polsce.
Do projektu można zamówić dodatkowe pakiety rysunków, które rozszerzają funkcjonalność domu, poprawiają wygodę użytkowania budynku czy energooszczędność projektu Zosia 3. Są to na przykład pakiet instalacja solarna, dziennik budowy, tablica budowy czy instalacja fotowoltaiczna.
Projekt Zosia 3 dostępny jest również w odbiciu lustrzanym.
Domek jest świetną propozycją dla osób potrzebujących dodatkowych, poza sypialniami, pomieszczeń.
Zapraszamy do zapoznania się z pełną ofertą pracowni MG Projekt tej serii: projekt domu Zosia, projekt domu Zosia 2, projekt domu Zosia 4, projekt domu Zosia 5, projekt domu Zosia 6, projekt domu Zosia 7, projekt domu Zosia 7B, projekt domu Zosia 8.






Komentarze: