




158,62 m² wg PN-70/B-02365
162,78 m² wg PN-ISO 9836:1997
grawitacyjna
ogrzewanie w projekcie bazowym: kocioł gazowy c,o.
| Ep | 67,4 kWh/(m2) | |
| Ek | 55,5 kWh/(m2 rok) | |
| EUCO | 44,8 kWh/(m2 rok) |
Projekt domu Salsa to dom jednorodzinny z poddaszem o powierzchni użytkowej 158,62 m2 (kubatura 726 m3). Projekt Salsa przeznaczony jest dla 4-6 domowników. Dom jest zwieńczony dwuspadowym dachem. Kąt nachylenia dachu wynosi 40 stopni. Projekt przeznaczony jest na wąską działkę, która nie pozwala na budowę budynku o szerokiej elewacji frontowej. Można go zrealizować na działce o minimalnych wymiarach: 16,94 x 26,53 m.
Dom parterowy a poddaszem użytkowym, o prostej bryle przykrytej dwuspadowym dachem, z wystającą nieco poza główną bryłę parterową częścią garażu. Projekt przeznaczony jest na wąską działkę, która nie pozwala na budowę budynku o szerokiej elewacji frontowej. Minimalna szerokość działki to 16,9 metrów, ale zamieniając w jednej z bocznych elewacji okna na luksfery możemy posadowić dom na działce o szerokości poniżej 16 metrów (nawet na działce o szerokości 14,6 m - jeśli jest zgoda na zbliżenie się ścianą bez okien na 1,5 m od granicy). Prosta spokojna bryła domu połączona z nowoczesną formą i zastosowanymi materiałami daje atrakcyjną sylwetkę „Salsy”. Front domu ozdabia duży podcień wejściowy, z reprezentacyjnymi drzwiami. Od strony ogrodu mamy z kolei częściowo zadaszony taras, piękne przeszklone otwarcie przestrzeni dziennej na ogród, oraz taras –balkon poddasza. Nowoczesna stonowana kolorystyka domu pozwoli „Salsie” właściwie wkomponować się w dowolne sąsiedztwo.
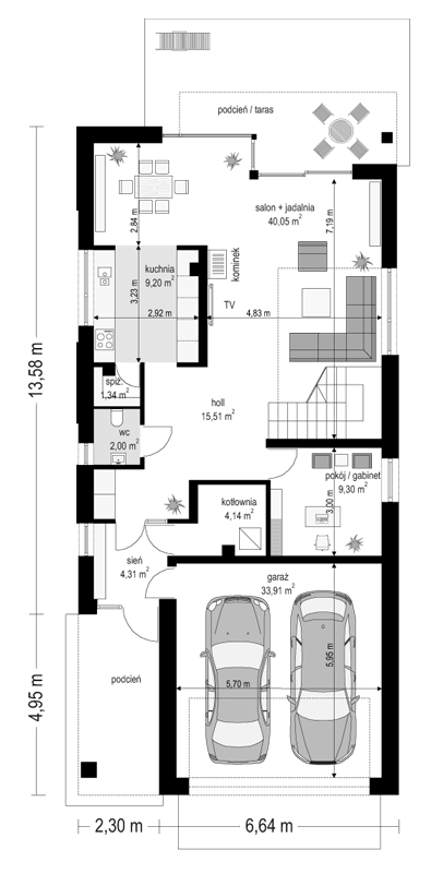
Wnętrze domu zaprojektowano sytuując garaż od frontu tuż obok wejścia. Z sieni przechodzimy szerokimi szklanymi drzwiami do holu. Hol ma bardzo poręczną wnękę z dużą szafą przy przedsionku. Z holu rozpościera się piękny widok na salon z pustką nad częścią jego powierzchni i nad schodami. W tym projekcie schody są bardzo dużą ozdobą wnętrza. W pobliżu znajduje się kuchnia (typ wagon) oraz przestronny aneks jadalny. Salon i jadalnia łączą się przeszklonymi drzwiami z tarasem i ogrodem. Z holu można dostać się jeszcze do WC oraz dodatkowego pokoju, w którym można urządzić gabinet lub pracownię.
Na poddaszu mamy piękny hol - antresolę widoczną z salonu na dole. Antresola stanowi most łączący pomieszczenia. Na poddaszu znajduje się apartament rodziców, z którego jest bezpośrednie połączenie z balkonem, łazienką i garderobą. Poza tym są jeszcze: 2 sypialnie, pralnia i łazienka. Sypialnie dziecięce również mają wyjście na drugi balkon-taras.
W gotowym projekcie można wprowadzać zmiany. Pracownia do każdej dokumentacji dołącza bezpłatnie „Zgodę na zmiany” dzięki której modyfikacje może wprowadzić każdy projektant z uprawnieniami w Polsce. Do tego projektu można zamówić dodatkowe pakiety rozszerzające funkcjonalność domu, wygodę i energooszczędność. Wśród udogodnień można znaleźć pakiet instalacji fotowoltaicznej czy ogrzewania podłogowego. Projekt dostępny jest również w odbiciu lustrzanym.
Projekt domu jednorodzinnego z użytkowym poddaszem Salsa to dobry pomysł dla osób ceniących współczesny design połączony z praktycznością rozwiązań. Jest to doskonały projekt na wąską działkę. Dzięki prostej konstrukcji będzie niedrogi w budowie i późniejszej eksploatacji. Wśród zalet projektu, wyróżniamy: nowoczesną architekturę, piękne wnętrze z pustką nad salonem, prostą bryłę. Warto mieć na uwadze, że wąska działka nie musi być wadą – wystarczy zdecydować się na właściwy projekt. My rekomendujemy projekt Salsa.
Zapraszamy do zapoznania się z całą serią "roztańczonych domów": projekt domu Makarena, projekt domu Bolero, projekt domu Lambada, projekt domu Party, projekt domu Party 2, projekt domu Biba, projekt domu Tango, projekt domu Salsa, projekt domu Rumba, projekt domu Mambo, projekt domu Mambo, projekt domu Fokstrot, projekt domu Samba.






Komentarze: