




207,29 m2 + strych wg PN-70/B-02365
221,03 m2 + strych/poddasze 76,32 m2 wg PN-ISO 9836:1997
mechaniczna nawiewno-wywiewna
ogrzewanie w projekcie bazowym: kocioł gazowy c,o.
| Ep | 66,0 kWh/(m2) | |
| Ek | 56,6 kWh/(m2 rok) | |
| EUCO | 16,7 kWh/(m2 rok) |
(Projekt z wentylacją mechaniczną w standardzie)
Projekt domu Willa Parkowa 6 jest kolejną wersją projektu z cieszącej się popularnością serii "Willi Parkowych". Dom ma ciekawy rzut i układ funkcjonalny. Willa Parkowa 6 jest to dom parterowy o powierzchni użytkowej 207,29 m2 (kubatura 1304,00 m3). Projekt jest przeznaczony dla 5 domowników. Willa parkowa 6 jest zwieńczony dachem wielospadowym. Kąt nachylenia dachu wynosi 30 stopni. Projekt domu można zrealizować na działce o minimalnych wymiarach: 31,47 x 26,12 m
Projekt domu Willa Parkowa 6 bryła budynku
Dom Willa Parkowa 6 jest parterowy, z dodatkowym strychem- poddaszem, które może pozostać pustą przestrzenią nad parterem, ale też może pełnić rolę poddasza użytkowego. Bryłę zaprojektowano na planie litery "L" z dobudowaną częścią garażową. Dzięki takiemu kształtowi domostwo będzie pasowało zarówno na działkę z ogrodem z tyłu domu, jak i z ogrodem z boku. Projekt domu Willa Parkowa 6 może też być dobrą propozycją dla działki narożnej. Wewnętrzny dziedziniec od frontu przed garażami pozwoli domownikom na swobodne parkowanie autami na podjeździe, jak też na odseparowanie garażu od reprezentacyjnego wejścia do willi - zupełnie jak w amerykańskich rezydencjach. Wewnętrzne patio od strony ogrodu tworzy zamkniętą intymną przestrzeń tarasową z pięknym zadaszeniem nad tarasem i dwukondygnacyjnymi oknami łączącymi salon z ogrodem.
Projekt domu Willa Parkowa 6 wnętrze
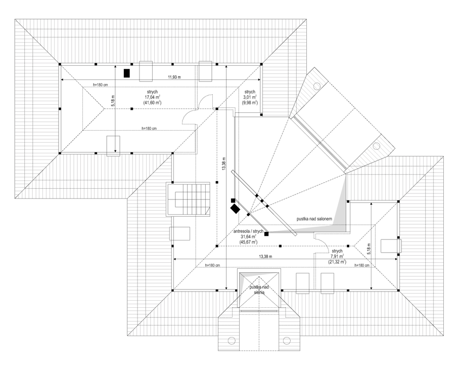
Do budynku dostajemy się szerokimi drzwiami, z naświetlami bocznymi i górnymi do podwyższonego przedsionka z szatnią skąd trafiamy do przestrzeni dziennej domu. Na środku domu stoi prostopadłościenna bryła ściany kominkowej ustawiona pod kątem, która oddziela hol od salonu. Na lewo od wejścia mamy piękną kuchnię z wykuszowym narożnym oknem z widokiem na wejście i dziedziniec wjazdowy. Kuchnia z wyspą i mini-jadalnią do codziennych posiłków. Z kuchni przedostajemy się – po amerykańsku – do części gospodarczej w której znajduje się kotłownia i pralnia oraz do garażu. W dwóch bocznych skrzydłach budynku mieszczą się: pokoje mieszkańców (dwie sypialnie dziecięce z łazienką w jednym), apartament rodziców z łazienką i garderobą oraz gabinetem do pracy w drugim. Pośrodku domu, w centralnym miejscu mamy piękny wysoki salon z dużym oknem na taras i ogród. Na górnej kondygnacji zaprojektowano antresolę nad salonem oraz dodatkową przestrzeń, w której bez problemu można urządzić dodatkowe trzy pokoje. Innym pomysłem jest wydzielenie przestrzeni magazynowej domu lub przeznaczenie całego poddasza na rekreację.
Koszt budowy domu Willa Parkowa 6
Budynek jest energooszczędny a dzięki dobrze zaplanowanej konstrukcji jego użytkowanie nie przysporzy nieadekwatnych kosztów. Istnieje możliwość dostosowania projektu do standardu NF 40.
Projekt domu Willa Parkowa 6 to reprezentacyjna luksusowa podmiejska rezydencja o stylowej i ponadczasowej architekturze. Dom nie jest mały, ale jego wielkość nie jest przesadzona. Budynek jest energooszczędny i ma sensownie zaprojektowaną konstrukcję.
Do projektu domu Willa Parkowa 6 można zamówić pakiety, które rozszerzają funkcjonalność domu, poprawiają wygodę użytkowania budynku czy energooszczędność. Są to m.in.: pakiet płaszcz wodny, projekt szamba szczelnego czy pakiet ogrzewanie podłogowe.
Zapraszamy do obejrzenia wszystkich projektów domów z serii Willa Parkowa: projekt domu Willa Parkowa, projekt domu Willa Parkowa 2, projekt domu Willa Parkowa 3, projekt domu Willa Parkowa 4, projekt domu Willa Parkowa 5, projekt domu Willa Parkowa 6, projekt domu Willa Parkowa 6 D, projekt domu Willa Parkowa 7, projekt domu Willa Parkowa 8 A, projekt domu Willa Parkowa 8 B, projekt domu Willa Parkowa 9, projekt domu Willa Parkowa 10, projekt domu Willa Parkowa B, projekt domu Willa Parkowa C, projekt domu Willa Parkowa D.
Projekty są również dostępne w odbiciu lustrzanym.






Komentarze: