Willa Parterowa wariant D z poddaszem z wiązarami o dopuszczalnym nacisku 150 kg/m2 (wersja ekonomiczna) zamiast tradycyjnej więźby ciesielskiej ze stropem żelbetowym.





171,77 m2 wg PN-70/B-02365
177,39 m2 + garaż wg PN-ISO 9836:1997
wentylacja mechaniczna z rekuperacją
ogrzewanie w projekcie bazowym: kocioł gazowy c,o.
| Ep | 69,4 kWh/(m2) | |
| Ek | 61,5 kWh/(m2 rok) | |
| EUCO | 31,1 kWh/(m2 rok) |
(Projekt z wentylacją mechaniczną w standardzie)
Projekt domu Willa Parterowa wariant D to reprezentacyjny, parterowy dom jednorodzinny dla 4-5 osobowej rodziny. Projekt domu Willa Parterowa wariant D to prawdziwie komfortowa willa o nieprzeciętnej funkcjonalności przeznaczona dla Inwestorów zdecydowanych żyć na parterze - bez biegania po schodach. Powierzchnia użytkowa domu wynosi 171,77 m2 m2. Projekt można zrealizować na działce o minimalnych wymiarach: 27,86 x 27,65m.
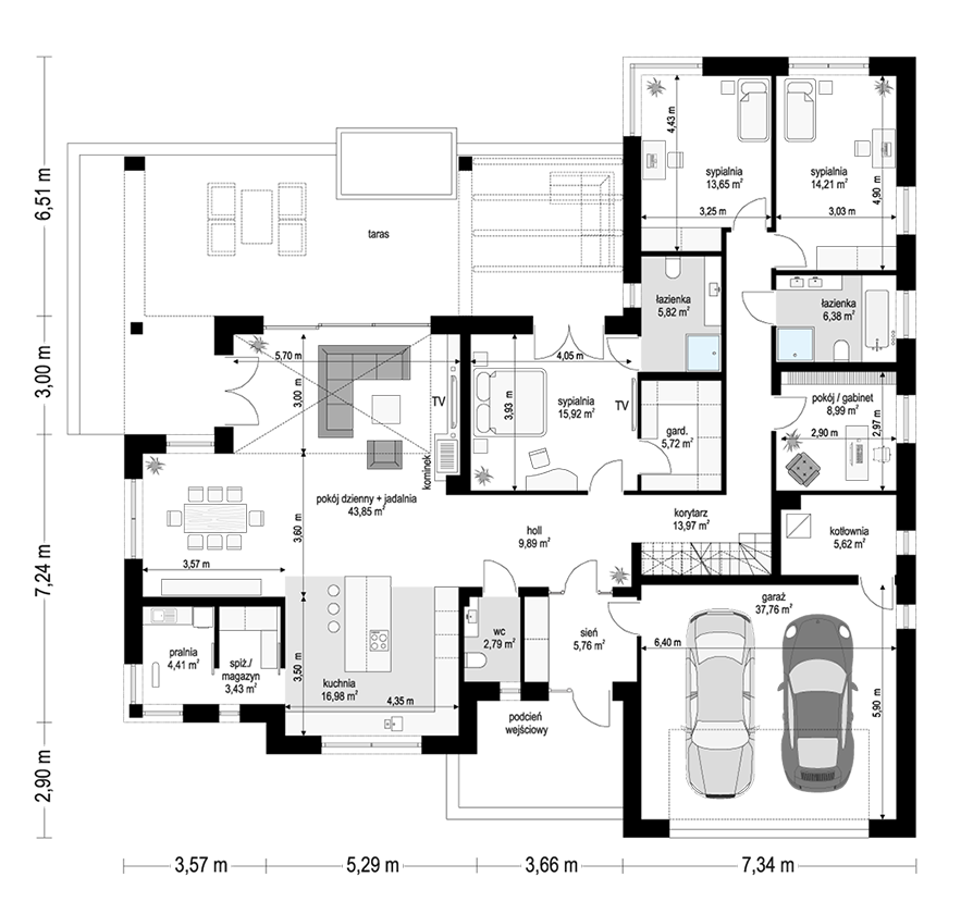
Dom jednorodzinny Willa Parterowa wariant D mimo niewielkich rozmiarów (powierzchnia użytkowa ok 180 m2) został zaprojektowany z amerykańskim rozmachem. Od samego wejścia Willa Parterowa wita nas szeroka efektowna elewacja frontowa z pięknie zaakcentowanymi drzwiami wejściowymi. Od strony ogrodowej wygląda to jeszcze bardziej imponująco. Układająca się w literę „L” bryła domu łączy się z tarasem a właściwie z zewnętrznym patio. Ta część jest chroniona przez zadaszenie oraz pergolę. Dzięki temu to miejsce będzie idealnie się sprawdzać zarówno podczas domowych przyjęć jak i spokojnych wieczorów w gronie najbliższych. Budynek Willa Parterowa wariant D zaprojektowaliśmy na planie litery "T" z główną prostokątną bryłą przykrytą czterospadowym dachem i dobudowanymi częściami dużego garażu i sypialni.
Styl Willi Parterowej to umiarkowana nowoczesność. Dzięki dużym przeszkleniom, kolorystyce i zastosowanym materiałom budowlanym dom Willa Parterowa wygląda nowocześnie, ale nie ekstrawagancko. Do wnętrza projektu Willa Parterowa trafiamy przez przedsionek do holu i stamtąd w dwie różne strony: do części dziennej i wieczornej. Część dzienna to salon ze ścianą kominkowo – telewizyjną połączony z tarasem szerokimi przeszkleniami. Pokój dzienny łączy się z jadalnią i kuchni. Część nocna to apartament rodziców z garderobą i łazienką, dwie sypialnie dzieci z szafami wbudowanymi i łazienką oraz dodatkowy pokój. Dodatkowa przestrzeń może być wykorzystana jako sypialnia, gabinet lub pokój rozrywki.
Nad salonem projektu Willa Parterowa wariant D zaplanowano otwarcie przestrzenne – pustkę, dzięki której wnętrze domu wydaje się znacznie większe. W wersji domku z zagospodarowanym strychem na poddaszu zaplanowano powyżej balustradę i antresolę. W wersji budynku ze strychem nieużytkowym - po prostu pustkę nad salonem. W jadalni zaplanowano całą ścianę na zabudowę – rzadko spotykaną wygodę. W kuchni zaprojektowano dużą centralną wyspę, a obok kuchni pomieszczenia spiżarki i pralni - po amerykańsku, Gospodarz domu ma pod ręką wszystkie urządzenia.
Projekt Willa Parterowa wariant D - część gospodarcza
W gotowym projekcie domu Willa Parterowa wariant D od frontu domu przewidziano jeszcze duży garaż na dwa samochody i kotłownię. Strych budynku może pozostać przestrzenią nieużytkową - domowym magazynem rzeczy różnych albo można go zaadaptować na powierzchnię użytkową, uzyskując tym samym dodatkową przestrzeń.
Gotowy projekt domu jednorodzinnego Willa Parterowa wariant D to dzięki optymalnie dobranym materiałom budowlanym i izolacji budynek energooszczędny. Dzięki temu będzie niedrogi w użytkowaniu przez domowników. Konstrukcja domu Willa Parterowa wariant D jest nieskomplikowana, więc koszty budowy domu są niskie.
Willa Parterowa wariant D z poddaszem z wiązarami o dopuszczalnym nacisku 150 kg/m2 (wersja ekonomiczna) zamiast tradycyjnej więźby ciesielskiej ze stropem żelbetowym.
Istnieje możliwość dostosowania projektu do standardu NF 40.
Projekt Willa Parterowa wariant D to świetna propozycja dla Inwestorów marzących o kontakcie z ogrodem i przyrodą, o komfortowym domostwie na jednej podłodze - bez chodzenia po schodach. Z pewnością dom jednorodzinny Willa Parterowa przeznaczony jest dla osób mających trochę większą działkę o wymiarach min 24,75x24,84 m i powierzchni minimum 700-800 m2.
W ofercie pracowni MGProjekt dostępna jest również wersja projektu domu Willa Parterowa wariant D w odbiciu lustrzanym oraz wariantowe wersje tego projektu domu.
Zapraszamy do zapoznania się z pełną ofertą pracowni MG Projekt: projekt domu Willa Parterowa, projekt domu Willa Parterowa 2, projekt domu Willa Parterowa 2 wariant B, projekt domu Willa Parterowa 2 wariant C, projekt domu Willa Parterowa 2 wariant D, projekt domu Willa Parterowa 3, projekt domu Willa Parterowa 3 wariant B, projekt domu Willa Parterowa 4, projekt domu Willa Parterowa 4 wariant B, projekt domu Willa Parterowa wariant B, projekt domu Willa Parterowa wariant C, projekt domu Willa Parterowa wariant D, projekt domu Willa Parterowa wariant E.
Komentarze: