Projekt domu Riwiera 5 to kolejny z popularnych projektów z serii Riwiera. Riwiera 5 to dom bez podpiwniczenia, z dachem o wyższym kącie nachylenia, oraz z wariantowym wnętrzem piętra: z pustką i antresolą nad salonem, oraz bez pustki.





197,06 m² wg PN-70/B-02365
204,51 m² wg PN-ISO 9836:1997
grawitacyjna
ogrzewanie w projekcie bazowym: kocioł gazowy c,o.
| Ep | 69,2 kWh/(m2) | |
| Ek | 65,1 kWh/(m2 rok) | |
| EUCO | 45,3 kWh/(m2 rok) |
Projekt domu Riwiera 5 to projekt domu jednorodzinnego, piętrowego. Powierzchnia użytkowa domu Riwiera 5 wynosi 197,06 m2 ( kubatura 945 m3) i może w nim mieszkać swobodnie 6 domowników. Dzięki układowi wnętrza i odpowiedniemu rozmieszczeniu okien budynek może być postawiony także na działce z wjazdem od południa. Działka na której można zrealizować projekt ma minimalne wymiary: 20,05 x 24,08 m.
To piętrowy dom, zbudowany na planie litery „T”, z wystającą nieco do przodu częścią garażową. Przykryty jest wielospadowym dachem krytym dachówką. Kąt nachylenia dachu wynosi 30 stopni. Nowoczesna bryła ozdobiona została dużymi oknami, kamiennymi okładzinami ścian, boniowaniami oraz gzymsami oddzielającymi parter i piętro. Szczególnie widowiskowe są narożne okna części dziennej połączone z oknami piętra. Architektura domu jest nowoczesna, a jednocześnie powściągliwa, stonowana i nieprzesadzona. Dzięki temu budynek nie traci na swojej przytulności. Wzdłuż bocznej ściany garażu zaplanowano podcień, który prowadzi do sieni. Od strony ogrodu zaprojektowany jest taras z zadaszeniem.
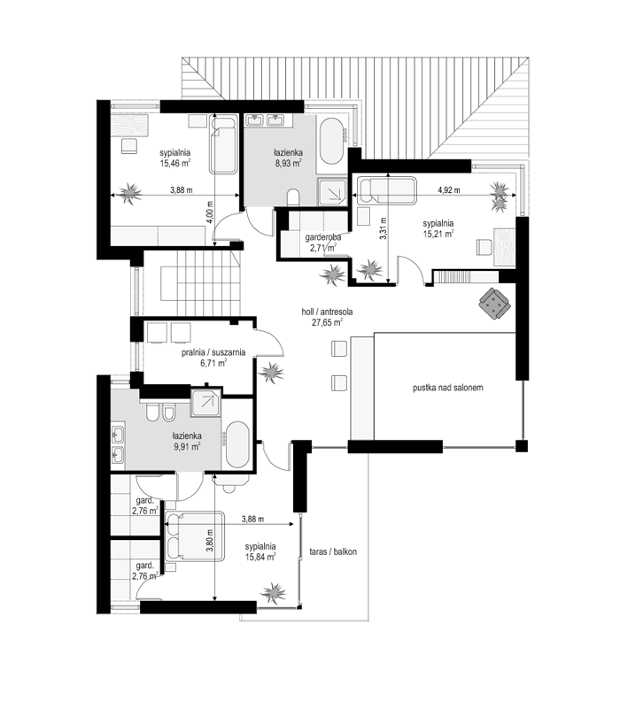
Na parterze zaprojektowano otwartą przestrzeń dzienną - w wersji z pustką z otwarciem sufitu nad salonem. Kuchnia z wyspą oddzielona od holu szklaną ścianą stanowi ozdobę salonu. Pokój dzienny, jadalnia i hol tworzą razem piękne wnętrze. Na parterze mamy też dodatkowy pokój (gabinet lub sypialnię gościnną), WC, kotłownię i dwustanowiskowy garaż. Na piętrze, w zależności od wersji (z pustką lub bez) mamy trzy lub cztery sypialnie, 2 łazienki, garderoby i pralnię. Sypialnia rodziców to oddzielny apartament z łazienką i dwiema garderobami. W wersji z pustką nad salonem mamy piękną antresolę będącą kontynuacją salonu.
Mimo dużych gabarytów, dom nie jest drogi w budowie. Dzięki zastosowanym instalacjom oraz izolacjom dom w przyszłości nie straci na energetyczności. Projekt można bardzo łatwo dostosować do standardu NF 40.
Pracownia MG Projekt posiada wersję odbicia lustrzanego oraz inne propozycje tej serii. Zapraszamy do zapoznania się z naszymi innymi propozycjami: Projekt domu Riwiera, Projekt domu Riwiera 2, Projekt domu Riwiera 3, Projekt domu Riwiera 4.






Komentarze: