Projekt domu Willa Floryda 7 jest kolejną propozycją dużego reprezentacyjnego domu piętrowego z serii „Willa Floryda”. Dom został zaprojektowany jako duża przestronna miejska willa, nadająca się na działkę o minimalnej szerokości 25 metrów. Budynek łączy w sobie zwartą prostopadłościenną bryłę, komfortowe, reprezentacyjne i funkcjonalne wnętrze, oraz nowoczesną atrakcyjną architekturę z ciekawymi detalami.





259,72 m² wg PN-70/B-02365
267,86 m² + garaż wg PN-ISO 9836:1997
wentylacja mechaniczna z rekuperacją
ogrzewanie w projekcie bazowym: kocioł gazowy c,o.
| Fundamenty: | betonowe ławy i ściany fundamentowe z bloczków betonowych |
| Ściany zewnętrzne: | ściany murowane - pustaki porotherm 25 + styropian |
| Strop: | monolityczny betonowy |
| Elewacje: | tynk cienkowarstwowy |
| Pokrycie dachu: | blacha na rąbek |
| EP | 66,3 Wh/(m2 rok) | |
| EK | 58,1 kWh/(m2) | |
| EUco | 32,2 kWh/(m2 rok) |
(Projekt z wentylacją mechaniczną w standardzie)
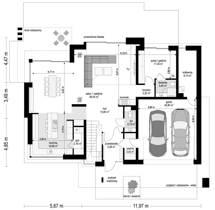
Projekt domu Willa Floryda 7 jest kolejną propozycją dużego reprezentacyjnego domu piętrowego z serii „Willa Floryda” - tym razem jest to projekt Willa Floryda 7. Dom został zaprojektowany jako duża przestronna miejska willa, nadająca się na działkę o minimalnej szerokości 25 metrów. Budynek łączy w sobie zwartą prostopadłościenną bryłę, komfortowe, reprezentacyjne i funkcjonalne wnętrze, oraz nowoczesną atrakcyjną architekturę z ciekawymi detalami. Willa Floryda 7 jest mniejszym budynkiem od podstawowego projektu. Ma mniejszą powierzchnię, mniej rozciągnięty rzut, dzięki czemu budynek jest mniej kosztowny. Zachowaliśmy tu wszystkie charakterystyczne elementy „Floryd” : podział fasad na poziome pasy elewacji, duże ilości przeszkleń, wejście podkreślone dominantą z górującym świetlikiem piętra, oraz zadaszenie – wiata przed garażami i podestem wejściowym. Dodatkowo wprowadziliśmy kolejne architektoniczne smaczki, jak narożnie usytuowaną i przeszkloną klatkę schodową, ciekawy wykusz pierwszego piętra z szerokim oknem nad garażami, a od strony ogrodowej podział elewacji na dwie kolorystycznie zróżnicowane części, z podkreślonym dwukondygnacyjnym oknem salonu. Całość bryły budynku przykryta jest – jak we wszystkich Florydach - dachem skośnym czterospadowym z szerokim gzymsowaniem. O architekturze tego domu można byłoby napisać jeszcze wiele zdań - ale najlepiej opowiedzą o niej same wizualizacje zewnętrzne i wewnętrzne budynku. Jeśli chodzi o układ funkcjonalny : dom podzielono na cześć dzienną i techniczno-garażową na parterze, oraz cześć z sypialniami na piętrze. Do domu wchodzimy wygodnym przedsionkiem z szatnią do otwartego holu z reprezentacyjnymi schodami. Rozległa przestrzeń dzienna składająca się z pokoju dziennego, jadalni i kuchni otwiera się dużymi przeszkleniami na taras i ogród willi. Nad salonem znajduje się pustka i otwarcie na antresolę na górze. Przez wielkie dwukondygnacyjne okno salonu możemy podziwiać ogród. Dodatkowe pomieszczenia na parterze to pokój-gabinet z osobną łazienką, oraz garaż z pomieszczeniem technicznym. Na piętrze miejsce znalazły 4 sypialnie, w tym dwa apartamenty z własnymi łazienkami i garderobami, z balkonami otwartymi na ogród, dodatkowa duża łazienka i pralnia. Wnętrze można oczywiście dowolnie modelować dostosowując do potrzeb konkretnej rodziny. Budynek zaprojektowano jako energooszczędny, z dobrymi izolacjami i nowoczesnymi instalacjami. Dom, mimo nowoczesnego i ekstrawaganckiego wyglądu, ma prostą konstrukcję i zwartą bryłę, dzięki czemu nie będzie trudny w budowie i powinien być niedrogi w późniejszej eksploatacji. Willa Floryda 7 to propozycja dla Inwestorów planujących budowę oryginalnego, wyjątkowego domu o nowoczesnym i reprezentacyjnym stylu. Willa będzie nietuzinkową i wyjątkową scenografią codziennego życia, podkreślającą dobry gust i oczekiwanie komfortu jego użytkowników. Dom stawiając Inwestorom wysoko poprzeczkę, odwdzięczy się ciesząc oko i karmiąc codziennie zmysły właścicieli, przyciągając jednocześnie zaciekawione spojrzenia sąsiadów i przechodniów. Willa Floryda 7 do dom dla Inwestorów chcących wyrazić siebie i zaznaczyć swoje przywiązanie do dobrego smaku i jakościowej architektury. Zapraszamy !
Zapraszamy do zapoznania się z pełną ofertą pracowni MG Projekt: projekt domu Willa Floryda, projekt domu Willa Floryda 2, projekt Willa Floryda 3, projekt domu Willa Floryda 4, projekt domu Willa Floryda 5, projekt Rezydencja Floryda, projekt Rezydencja Floryda 2, projekt domu Willa Floryda 6, projekt domu Willa Floryda 8, Rezydencja Floryda, Rezydencja Floryda 2.
Komentarze: