




347,89 m² wg PN-70/B-02365
358,61 m² + garaż + strych wg PN-ISO 9836:1997
mechaniczna nawiewno-wywiewna
ogrzewanie w projekcie bazowym: pompa ciepła (powietrze-woda lub z kolektorem gruntowym)
| EK | 22,0 Wh/(m2 rok) | |
| EP | 56,7 kWh/(m2) | |
| EP WT2017 | 95 kWh/(m2) | |
| EUco | 22,6 kWh/(m2 rok) |
(Projekt z wentylacją mechaniczną w standardzie)
Projekt domu Willa Floryda 5 to luksusowa rezydencja dla sześciorga mieszkańców. Wygodna, piętrowa Willa Floryda 5 prezentuje miejski, nowoczesny styl. Dom jest komfortową rezydencją przeznaczoną na działkę z bocznym lub frontowym ogrodem. Powierzchnia użytkowa wynosi 347,89 m2 (kubatura 2010 m3). Rozczłonkowana piętrowa sylwetka domu przykryta jest czterospadowym dachem z praktycznie niewidocznym z wysokości oczu człowieka. Daje to wrażenie budynku z płaskim dachem przy – tak naprawdę zadaszeniu spadzistym (częstym wymogu w zapisach warunków zabudowy). Projekt Willa Floryda można zrealizować na działce o minimalnych wymiarach 35,39 x 23,30 m.
Architektura domu łączy w sobie nowoczesną formę z funkcjonalnie rozwiązanym wnętrzem. Stylowa urozmaicona bryła oraz reprezentacyjne wnętrze podkreślają dobry gust właścicieli. Elewacje podzielone zostały na pasy okien przeplecionych białymi belkami oddzielającymi kondygnacje, wprowadzają rytm i porządek. Do budynku wchodzimy eleganckimi szerokimi drzwiami wejściowymi z bocznymi naświetlami pod zadaszeniem balkonu. Front domu ozdabia tutaj pionowa dwukondygnacyjna ściana z naświetlem, duże okna w narożnikach elewacji oraz wygodna wiata przed trzystanowiskowym garażem.
Elewacją ogrodową jest w Willi Florydzie 5 elewacja boczna domu z dużym zadaszonym tarasem - miejscem wieczornych biesiad oraz wielkimi narożnymi przeszkleniami salonu.
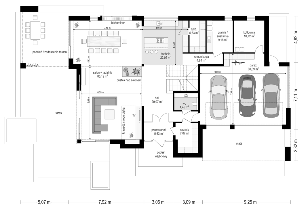
Wnętrze parteru to przede wszystkim ogromna jednoprzestrzenna powierzchnia połączonych pomieszczeń holu, salonu, jadalni i kuchni. W otwartej przestrzeni dziennej mieszczą się reprezentacyjne schody na piętro, salon z dużą pustką i otwarcie na antresolę. W centralnej części salonu jest miejsce na duży i wygodny komplet wypoczynkowy ze ścianą telewizyjną. Ozdobą parteru jest jadalnia ze stołem na 14 lub więcej osób i pięknym kominkowym gazowym. Kuchnia z wyspą jest otwarta na salon i jadalnię. Dla osób szukających atrakcyjnych akcentów przewidziano na środku ogródek na rośliny oraz mnóstwo miejsca na ekspozycję kolekcji dzieł sztuki lub zdjęć. Wszystko skąpane jest w świetle szerokich dwukondygnacyjnych przeszkleń.
Na zapleczu za kuchnią mamy pomieszczenia gospodarcze takie jak: pralnia, spiżarnia czy kotłownia. Przy wejściu: szatnię, toaletę i przejście do trzystanowiskowego garażu.
Piętro domu to z kolei sypialnia master z garderobami i łazienką oraz z dodatkowym rezerwowym pokojem i dwie sypialnie dziecięce z własną drugą łazienką. Nad salonem wisi pięknie przeszklone pomieszczenie biura domowego lub biblioteki oraz otwierająca się na parter i na ogród antresola. Wszystkie pokoje na piętrze mają swoje wyjścia na okalające tarasy. Sypialnia master ma osobny bardzo duży taras z widokiem na ogród.
Projekt Floryda 5 to kolejna propozycja dużego, luksusowego domu dla świadomych Inwestorów. W gotowym projekcie można wprowadzać zmiany, a pracownia do każdej dokumentacji dołącza bezpłatnie „Zgodę na zmianę”, dzięki której modyfikacje do projektu Willa Floryda 5 może wprowadzić każdy projektant z uprawnieniami. Do projektu Willa Floryda 5 można zamówić dodatkowe pakiety rysunków, które rozszerzają funkcjonalność domu, poprawiają wygodę użytkowania budynku czy energooszczędność projektu.
Istnieje możliwość dostosowania projektu do standardu NF40.
Pracownia MG Projekt dysponuje kilkoma wersjami i wariantami.
Zapraszamy do zapoznania się z pełną ofertą pracowni MG Projekt: projekt domu Willa Floryda, projekt domu Willa Floryda 2, projekt Willa Floryda 3, projekt domu Willa Floryda 4, projekt Rezydencja Floryda, projekt Rezydencja Floryda 2, projekt domu Willa Floryda 6, projekt domu Willa Floryda 7, projekt domu Willa Floryda 8.






Komentarze: