Projekt domu Wąski to dom jednorodzinny parterowy dla rodziny 4- 5-osobowej, przeznaczony na wąską działkę, lub działkę z ogrodem z boku - ze względu na ustawienie względem słońca.





137,23 m2 wg PN-70/B-02365
144,50 m2 + garaż wg PN-ISO 9836:1997
wentylacja mechaniczna z rekuperacją
ogrzewanie w projekcie bazowym: kocioł gazowy c,o.
| Ep | 64,5 kWh/(m2) | |
| Ek | 58,3 kWh/(m2 rok) | |
| EUCO | 21,4 kWh/(m2 rok) |
(Projekt z wentylacją mechaniczną w standardzie)
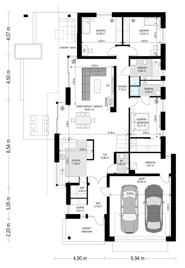
Projekt domu Wąski to dom jednorodzinny parterowy dla rodziny 4- 5-osobowej, przeznaczonego na wąską działkę lub działkę z ogrodem z boku - ze względu na ustawienie względem słońca. Projekt domu można zbudować na działce o szerokości min 18,84 m i długości 30,36 m. Powierzchnia użytkowa wynosi 137,23 m² (kubatura 942 m3). Dom zwieńczony jest dachem o wielospadowym.
Projekt domu Wąski ma dość prostą bryłę, zorganizowaną na planie prostokąta, przykrytą czterospadowym dachem o kącie nachylenia 30 stopni z niewielkimi dobudówkami. Architektura projektu domku Wąski jest nowoczesna. Dzięki dużym przeszkleniom uzyskano atrakcyjny estetycznie budynek. Wejście do domu Wąski zaakcentowano podcieniem i reprezentacyjnymi drzwiami wejściowymi. W gotowym projekcie domku Wąski elewacja boczna i tylna mają z kolei największe przeszklenia z części dziennej, dzięki czemu taras stanowi idealne przedłużenie salonu. Masywny dach nad całością parteru nadaje budynkowi stylu i elegancji. Detale takie jak narożne podłużne okno kuchenne zaprojektowane między szafkami kuchennymi podkreślają nowoczesny styl domostwa. Ten projekt domu ma także duży, dwustanowiskowy garaż.
Do domu Wąski wchodzimy przez obszerny podcień do wygodnej sieni z szatnią, aby dalej przedostać się do otwartej dużej przestrzeni dziennej połączonych pomieszczeń holu, salonu, jadalni i kuchni. Kuchnia ze spiżarnią w projekcie domku Wąski jest częściowo oddzielona od reszty budynku ścianą z zabudową. W salonie projektu Wąski mamy ścianę telewizyjno – kominkową z centralnym trzystronnym kominkiem i piękne przeszklenia otwierające wnętrze na taras. Głębiej przechodząc dalej we wnętrzu projektu Wąski znajduje się korytarz, z którego rozchodzimy się do trzech sypialni: dwóch sypialni dzieci z wbudowanymi szafami i łazienką oraz oddzielnego apartamentu rodziców z własną łazienką i garderobą.
Z przedsionka projektu Wąski przechodzimy do części garażowo – gospodarczej, z podwójnym garażem i dużą kotłownią. Projekt Wąski jest bardzo wygodny na parterze, a można jeszcze wykorzystać w nim strych, wykonując schody, które są wariantowo przewidziane z holu przy WC. Strych projektu Wąski to rezerwa dodatkowych około 40 m² powierzchni, którą można wykorzystać jako strych – magazyn. Można też adaptować ją na dodatkową przestrzeń dzienną, na przykład z extra dwoma pokojami w domu.
Gotowy projekty domku Wąski jest energooszczędny, dość prosty w budowie. Koszt budowy projektu Wąski nie powinien być wysoki, dom jest tani w późniejszym utrzymaniu. Istnieje możliwość dostosowania projektu do standardu NF 40.
W gotowym projekcie można wprowadzać zmiany, a pracownia do każdej dokumentacji dołącza bezpłatnie „Zgodę na zmiany” , dzięki której modyfikacje do projektu może wprowadzić każdy projektant z uprawnieniami w Polsce.
Do projektu można zamówić dodatkowe pakiety rysunków, które rozszerzają funkcjonalność domu, poprawiają wygodę użytkowania budynku czy energooszczędność projektu.
Są to na przykład pakiet kotłownia na paliwo stałe, instalacje fotowoltaiczne, pakiet płaszcz wodny.
Projekt domu Wąski to projekt wygodnego domu jednorodzinnego, o wystarczającej ilości miejsca do komfortowego mieszkania, pasujący przede wszystkim do wąskiej działki lub działki z ograniczeniem szerokości elewacji frontowej
Ten projekt domu na wąską działkę dostępny jest także w wersji odbicia lustrzanego.
Zapraszamy do zapoznania się z pełną ofertą pracowni MG Projekt: projekt domu Wąski, projekt domu Wąski 2, projekt domu Wąski 3.






Komentarze: