




grawitacyjna
ogrzewanie w projekcie bazowym: pompa ciepła
| Ep | 66,0 kWh/(m2) | |
| Ek | 26,4 kWh/(m2 rok) | |
| EUCO | 43,2 kWh/(m2 rok) |
Projekt Smyk to propozycja na niewielki dom jednorodzinny przeznaczony dla 3-4 użytkowników. Powierzchnia użytkowa domu wynosi 75,58 m2 (kubatura 251 m3). Bryłę przykryto symetrycznym, dwuspadowym dachem. Smyk może być wybudowany na działce o minimalnych wymiarach: 13,20 x 18,37m i jest dobrą propozycją dla wąskich działek. Ten projekt może być rozpatrywany jako domek letniskowy.
Smyk zaplanowany jest na planie prostokąta o wymiarach: 6,20 x 10,37 m. Ta prosta bryła zwieńczona jest dwuspadowym dachem o kącie nachylenia 45 stopni. Smyk charakteryzuje bezpretensjonalna architektura i funkcjonalne wnętrze. Ten prosty dom wpasuje się w każde otoczenie. Jasna elewacja współgra z drewnianymi okiennicami, kolorową dachówką ceramiczną. Całość prezentuje się bardzo harmonijnie. Zaletą domu są duże przeszklenia, które dodają efektu nowoczesności.
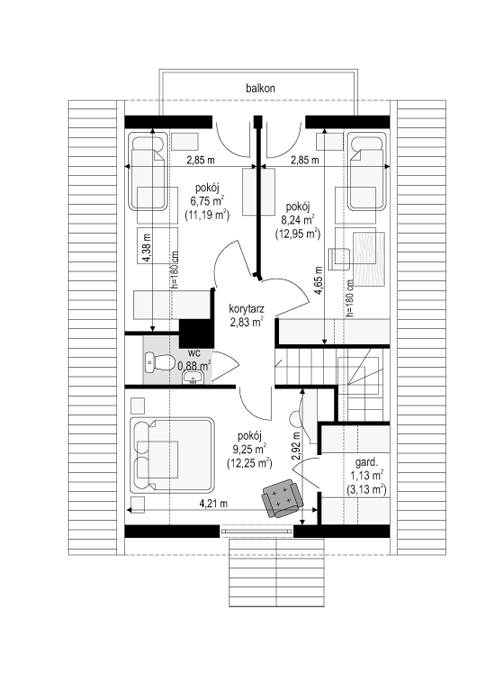
Do wejścia zaprasza nas wysunięta część bryły w której znajduje się wiatrołap. Po wyjściu z sieni trafiamy do holu, który prowadzi do salonu oraz otwartej kuchni. Uzupełnieniem programu użytkowego jest łazienka. Na poddasze prowadzą nas schody. Na wyższej kondygnacji znajdują się trzy pokoje, które można dowolnie zaaranżować. Świetnym miejscem do podziwiania przyrody jest balkon do którego jest dostęp z dwóch pokoi. W naszym projekcie kładliśmy nacisk na to, by dom sprawiał jak najwięcej przyjemności mieszkańcom. Dlatego strefa dzienna w postaci salonu na parterze została przedłużona tarasem. Takie połączenie to klucz do mile spędzonego czasu w gronie najbliższych i przyjaciół szczególnie w słoneczne, ciepłe dni.
Dom ze względu na prostą konstrukcję jest niedrogi w budowie. Jest wspaniałą alternatywą dla osób, którzy dysponując niewielkimi środkami wybierają dom zamiast niewielkiego mieszkania. Dom jest energooszczędny i w łatwy sposób istnieje możliwość dostosowania projektu do standardu NF 40.
W gotowym projekcie domu można wprowadzać zmiany, a pracownia do każdej dokumentacji dołącza bezpłatnie „Zgodę na zmiany" dzięki której modyfikacje do projektu Smyk może wprowadzić każdy projektant z uprawnieniami w Polsce.
Do projektu Smyk można zamówić dodatkowe pakiety rysunków, które rozszerzają funkcjonalność domu, poprawiają wygodę użytkowania budynku czy energooszczędność projektu. Są to na przykład pakiet kotłownia na paliwo stałe, pakiet ogrzewanie podłogowe, tablica budowy czy instalacja fotowoltaiczna.
Pracownia posiada odbicie lustrzane projektu.
Zapraszamy do zapoznania się z wersją wariantową: projekt domu Smyk 2.






Komentarze: