




58,44 m2 wg PN-70/B-02365
58,44 m2 wg PN-ISO 9836:1997
grawitacyjna
ogrzewanie w projekcie bazowym: pompa ciepła
| Ep | 69,5 kWh/(m2) | |
| Ek | 50,9 kWh/(m2 rok) | |
| EUCO | 59,4 kWh/(m2 rok) |
Projekt domu Sosenka Drewniana wariant B to propozycja domu, który może pełnić funkcję zarówno letniskowego jak i całorocznego domu. To mały, parterowy dom z poddaszem użytkowym. Powierzchnia domu wynosi prawie 52 m2 (kubatura 151 m3). We wnętrzach domu Sosenka Drewniana może mieszkać komfortowo 4 użytkowników. Minimalna wielkość działki na jakiej może być realizowany to: 15,26 x 13,51m.
Architektura domu Sosenka Drewniana wariant B
Prosta bryła domu oraz drewniana konstrukcja zwieńczona została dwuspadowym dachem o kącie nachylenia 45 stopni. Jego zaletami są właściwe proporcje nadające estetyczny wygląda budynku. Wejście do domu akcentują niewielkie schody oraz okap nad drzwiami wejściowymi. Urozmaiceniem prostej bryły jest zadaszony balkon, który tworzy podcień. Ozdobą domu są okiennice oraz drewniane detale architektoniczne. Taras ograniczony jest dwoma słupami, które podtrzymują taras. Sosenka Drewniana to wspaniała propozycja dla osób szukających urokliwego domu o niewielkim rozmiarze.
Wnętrze domu Sosenka Drewniana wariant B
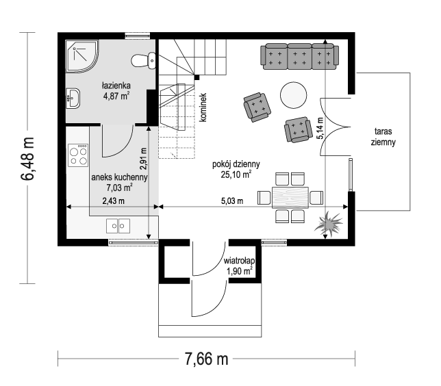
Bryła domu Sosenka Drewniana zawiera w sobie przemyślany układ funkcjonalny. Na parterze zaplanowany jest pokój dzienny, kuchnia i łazienka. W projekcie salonu uwzględniono strefę wypoczynkową oraz jadalnię. Na wprost strefy relaksu znajduje się ściana z kominkiem, który to w trakcie chłodniejszych dni zapewni odpowiednią temperaturę w pomieszczeniach. Kuchnia w kształcie litery L jest niezwykle funkcjonalna i mieści w sobie wszystkie niezbędne sprzęty do przygotowywania posiłków. Łazienka na parterze wielkości prawie pięciu metrów jest przestronna i łatwa w aranżacji. Przestronny salon łączy się z tarasem poprzez dwuskrzydłowe drzwi. Ta zewnętrzna, dodatkowa przestrzeń na tarasie ożyje podczas wakacyjnych biesiad. Schody z salonu prowadzą na poddasze, które można dowolnie aranżować. Nasza propozycja to dwie sypialnie, ale można te pomieszczenia dowolnie aranżować, np. na gabinet czy salon gier. Większa sypialnia ma dodatkowy atut – jest nim balkon. Dodatkową zaletą tego projektu jest ganek.
Koszty budowy Sosenka Drewniana wariant B
Projekt domu ma same zalety: jest niezwykle estetyczny, ma funkcjonalne wnętrze i jest prosty oraz ekonomiczny w budowie. Konstrukcja domu jest na tyle nieskomplikowana, że można zbudować dom w systemie gospodarczym. Istnieje możliwość dostosowania projektu do standardu NF 40.
W gotowym projekcie domu Sosenka Drewniana wariant B można wprowadzać zmiany, a pracownia do każdej dokumentacji dołącza bezpłatnie „Zgodę na zmiany", dzięki której modyfikacje do projektu może wprowadzić każdy projektant z uprawnieniami w Polsce.
Do projektu Sosenka Drewniana wariant B można zamówić dodatkowe pakiety rysunków, które rozszerzają funkcjonalność domu, poprawiają wygodę użytkowania budynku czy energooszczędność projektu. Są to na przykład pakiet kotłownia na paliwo stałe, dziennik budowy, projekty ogrodzeń czy instalacja fotowoltaiczna.
Pracownia MGProjekt posiada wiele wersji Sosenek ze zmienionymi gabarytami: z balkonem i tarasem z boku domu (Sosenka 4), przedłużony o 0,5 m - bez balkonu, przedłużony o 1,5 m z pomieszczeniem gospodarczym przy kuchni (Sosenka 3), z gankiem wejściowym (Sosenka 2), powiększony wariant domu (Sosenka 5).
Komentarze: