




169,43 m2 wg PN-70/B-02365
180,81 m2 wg PN-ISO 9836:1997
grawitacyjna
ogrzewanie w projekcie bazowym: kocioł gazowy c,o.
Dla domu standardowego z wentylacją grawitacyjną:
| Ep | 67,9 kWh/(m2) | |
| Ek | 64,2 kWh/(m2 rok) | |
| EUCO | 44,8 kWh/(m2 rok) |
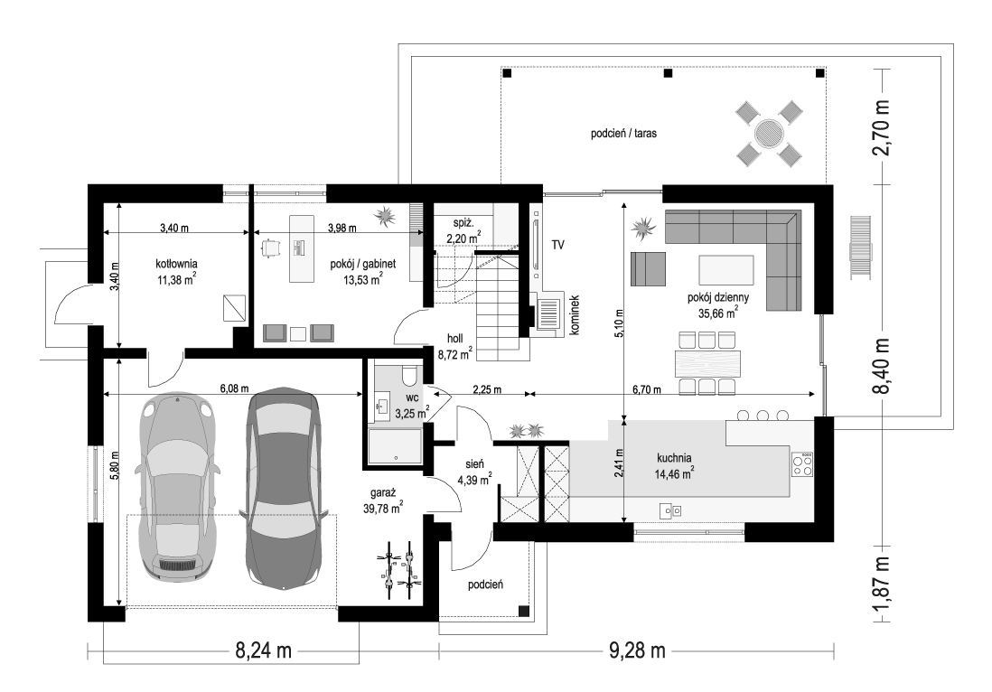
Projekt domu Party wariant C to dom dla 4- 5-osobowej rodziny. Ten parterowy dom z poddaszem użytkowym ma 169,43 m² powierzchni użytkowej (kubatura 783 m3). Party wariant B ma garaż dwustanowiskowy, a całość zwieńczona jest dwuspadowym dachem. Projekt można zrealizować na działce o minimalnych wymiarach: 25,52 x 19,97 m.
Nowoczesna architektura domu łączy w sobie prostotę brył i płaszczyzn tworzących elewacje z dopracowanym detalem, ciekawą kolorystyką i wysokiej jakości materiałami. Podczas projektowania tego domu zależało nam najbardziej na tym, aby jego wygląd był nowoczesny i ponadczasowy. Osiągnęliśmy to dzięki prostej architekturze, wyważonym proporcjom i eleganckiej dachówce.
Wnętrze domu Party wariant C podzielono na część dzienną i gospodarczą na parterze oraz sypialnie na poddaszu. Wejście główne prowadzi nas do sieni z której dostajemy się do holu lub garażu. Wnętrze parteru wypełnia przestronna kuchnia połączona z jadalnią oraz strefą wypoczynku. Ozdobą wnętrza są ładnie wyeksponowane z wejścia schody na poddasze duże przeszklenia salonu i centralny kominek. Dodatkowo na parterze znajduje się również pokój do dowolnej aranżacji. Dużą zaletą pomieszczenia jest przeszklenia, które doświetlają wnętrze i w prosty sposób łączy salon z tarasem i ogrodem. W projekcie domu Party wariant B na poddaszu przewidziano trzy sypialnie: dwie dziecięce z szafami wnękowymi i wspólną łazienką oraz wygodną sypialnię rodziców z osobną łazienką i garderobą. Ten wspaniały projekt posiada wszystko czego można oczekiwać od domu jednorodzinnego.
Dom Party wariant C to reprezentant domów energooszczędnych o prostej konstrukcji. Dzięki nowoczesnych izolacjom będzie niedrogi w utrzymaniu i eksploatacji. Dodatkowo zastosowane zostały nowoczesne materiały i instalacje, które pozwolą utrzymać niskie koszty utrzymania budynku. Projekt ten często wybierany jest przez osoby, które chcą szybko cieszyć się nowym domem.
Do projektu Party wariant C można zamówić dodatkowe pakiety rysunków, które rozszerzają funkcjonalność domu, poprawiają wygodę użytkowania budynku czy energooszczędność. Warto zwrócić uwagę na: instalację solarną, instalację fotowoltaiczną czy pakiet kominek z DGP.
Istnieje możliwość dostosowania projektu do standardu NF 40.
Projekt nowoczesnego domu można zamówić w odbiciu lustrzanym.
Zapraszamy również do zapoznania się z wariantowymi wersjami projektu domu Party, które razem tworzą kolekcję „roztańczonych” domów, czyli: Makarena, Bolero, Lambada, Party, Party 2, Biba, Tango, Salsa, Rumba, Mambo, Fokstrot, Samba.
Komentarze: