




191,27 m2 wg PN-70/B-02365
210,42 m2 + garaż wg PN-ISO 9836:1997
mechaniczna nawiewno-wywiewna
ogrzewanie w projekcie bazowym: kocioł gazowy c,o.
| Ep | 68,4 kWh/(m2) | |
| Ek | 52,4 kWh/(m2 rok) | |
| EUCO | 20,8 kWh/(m2 rok) |
(Projekt z wentylacją mechaniczną w standardzie)
Projekt domu Szmaragd 5 wariant C to propozycja domu jednorodzinnego piętrowego, z garażem częściowo wbudowanym w bryłę. Projekt domu przeznaczony jest dla 3- 4-osobowej rodziny. Powierzchnia użytkowa domu wynosi 191,27 m² (kubatura 1046,94 m3). Całość zwieńczona jest dachem wielospadowym. Szmaragd 5 wariant C może być realizowany na działce o minimalnych wymiarach: 20,78 x 24,48 m.
Nowoczesny wygląd bryły, zastosowane na elewacjach materiały oraz kolorystyka doskonale komponują się z przestronnym wnętrzem. Urozmaica ją podcień wejściowy oraz szykowne wykusze. Bryła budynku jest zwarta, przykryta kopertowym dachem o kącie nachylenia 22 stopni. Murowany, współczesny dom świetnie będzie prezentował się w miejskim krajobrazie.
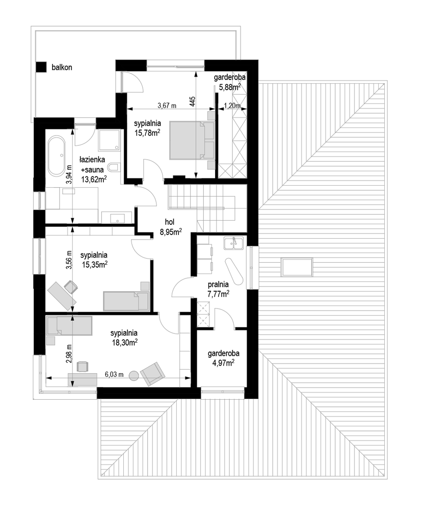
Projekt domu Szmaragd 5 wariant C to komfortowy dom. Ma w sobie wszystko, czego można oczekiwać od prawdziwego domu. Do domu prowadzi podcień, a potem sień, z której dostępny jest dwustanowiskowy garaż. Parter domu to otwarta część dzienna z salonem, holem, jadalnią i otwartą kuchnią, Razem pomieszczenia tworzą dużą wspólną przestrzeń. Dodatkowo na parterze przewidziano pokój - gabinet lub sypialnię gościnną, łazienkę oraz duży garaż i kotłownię. Na piętrze mamy trzy ładne sypialnie (sypialnia rodziców z garderobą) oraz bardzo ładną łazienkę. Jest też dodatkowe pomieszczenie, które może służyć jako: pokój, domowe biuro, pralnię lub garderobę.
Dobre ocieplenia i nowoczesne instalacje pozwalają go w łatwy sposób przystosować do standardu NF 40. Dzięki temu dom będzie niedrogi zarówno w budowie jak i późniejszej eksploatacji. Dom jest energooszczędny. ekonomiczny w późniejszym użytkowaniu.
W gotowym projekcie domu Szmaragd 5 wariant C można wprowadzać zmiany, a pracownia do każdej dokumentacji dołącza bezpłatnie „Zgodę na zmiany", dzięki której modyfikacje do projektu może wprowadzić każdy projektant z uprawnieniami w Polsce.
Do projektu można zamówić dodatkowe pakiety rysunków, które rozszerzają funkcjonalność domu, poprawiają wygodę użytkowania budynku czy energooszczędność projektu. Są to na przykład pakiet kotłownia na paliwo stałe, instalacja fotowoltaiczna, tablica budowy czy pakiet ogrzewanie podłogowe.
Projekt dostępny jest w odbiciu lustrzanym.
Zapraszamy do zapoznania się innych naszych propozycji z tej serii: projekt domu Szmaragd, projekt domu Szmaragd 2, projekt domu Szmaragd 3, projekt domu Szmaragd 4, projekt domu Szmaragd 6.
Komentarze: