




205,45 m² wg PN-70/B-02365
228,04 m² + garaż wg PN-ISO 9836:1997
grawitacyjna
ogrzewanie w projekcie bazowym: kocioł gazowy c,o.
| Ep | 67,9 kWh/(m2) | |
| Ek | 63,8 kWh/(m2 rok) | |
| EUCO | 43,6 kWh/(m2 rok) |
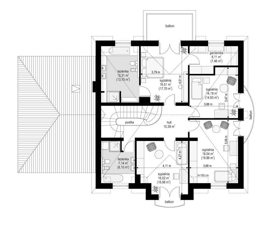
Projekt domu Magnat to reprezentacyjna stylowa willa, nawiązująca do stylistyki dworków i willi międzywojennych. Projekt domu Magnat swój ponadczasowy styl łączy z nowocześnie i funkcjonalnie zaprojektowanym wnętrzem. Dom jest prostokątną, parterową bryłą z poddaszem użytkowym oraz dobudowaną częścią garażową. Budynek został przekryty czterospadowym dachem. Na elewacji frontowej i ogrodowej zaprojektowano dwukondygnacyjne portale, podparte kolumnami, zakończone dwuspadowymi zdobionymi frontonami. Pomimo tego, że główna bryła budynku jest parterowa, poddasze ma bardzo wysoką ścianę kolankową, także prawie cała powierzchnia podłogi górnej kondygnacji jest użytkowa - powyżej wysokości stania człowieka. Wnętrze domu Magnat zaprojektowano wydzielając na parterze dużą przestrzeń dzienną: salonu, jadalni, holu i częściowo otwartej kuchni. Salon z jadalnią mają obniżoną o dwa stopnie podłogę, przez co pomieszczenia te zyskują na wysokości. Piękne reprezentacyjne schody w holu widoczne są również z pokoju dziennego i jadalni. Na parterze mieści się też gabinet - biblioteka (można go zaadaptować na dodatkowy pokój z wejściem z holu) i dodatkowy pokój - na przykład sypialnia. W część gospodarczej mieści się wygodny garaż i duża kotłownia. Na poddaszu przewidziano cztery sypialnie, z apartamentem rodziców, posiadającym własną łazienkę i garderobę, oraz wyjście na taras ogrodowy na piętrze. Pracownia posiada też wersję w standardzie NF40 oraz wersję odbicia lustrzanego projektu Magnat. Zapraszamy do zapoznania się z pełną ofertą pracowni MG Projekt tej serii: projekt domu Magnat 2, projekt domu Magnat 3, projekt domu Magnat 4.






Komentarze: