Projekt domu Lucky to dom jednorodzinny, dla 4- 6-osobowej rodziny, parterowy z użytkowym poddaszem, zaprojektowany na planie litery „L”, z osłoniętym z dwóch stron tarasem, oraz z dobudowanym garażem.





139,96 m² wg PN-70/B-02365
144,67 m² + garaż wg PN-ISO 9836:1997
| Ep | 72,7 kWh/(m2) | |
| Ek | 89,5 kWh/(m2 rok) | |
| EUCO | 65,21 kWh/(m2 rok) |
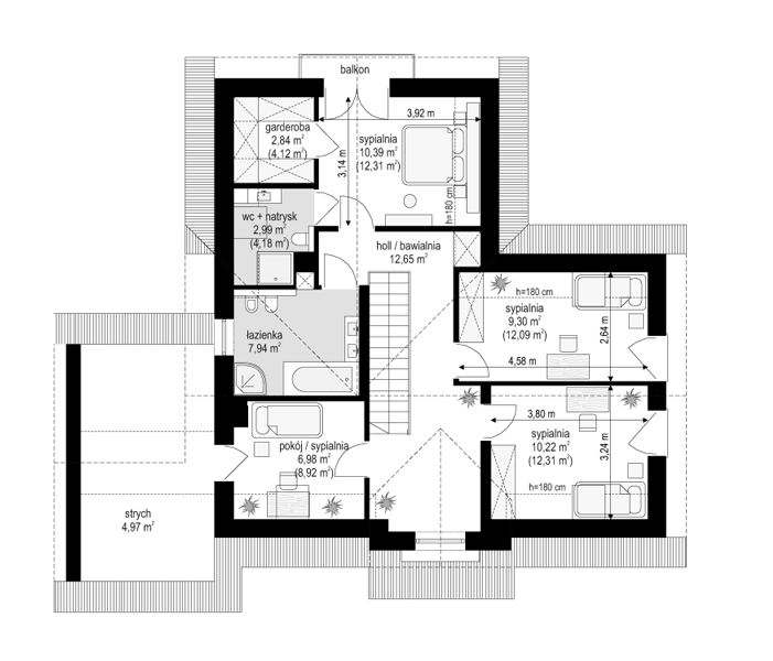
Projekt domu Lucky to dom jednorodzinny, dla 4- 6-osobowej rodziny, parterowy z użytkowym poddaszem, zaprojektowany na planie litery „L”, z osłoniętym z dwóch stron tarasem, oraz z dobudowanym garażem. Dom Lucky dzięki aż sześciu pokojom doskonale nadaje się dla większej rodziny, z większą gromadką dzieci, bądź dla rodziny trzypokoleniowej. Architektura domu jest bezpretensjonalna - dom jest po prostu ładny. Udane proporcje i połączenie brył tworzy budynek o ludzkiej skali, nie przesadzony, który doskonale wpasuje się w każde otoczenie. Połączenie tradycyjnej stylistyki z nowoczesnymi materiałami i kolorystyką tworzą udany efekt. Parter domu to otwarta przestrzeń dzienna, z centralnym holem i dekoracyjnymi schodami, salon z kominkiem i ścianą TV, otwartą kuchnią i jadalnią. Razem pomieszczenia te tworzą jednoprzestrzenne duże wnętrze dzienne, ładnie otwarte na taras i ogród. Na parterze mamy dodatkowy pokój, łazienkę, kotłownię i garaż. Z kuchni dostępna jest spiżarnia. Na poddaszu zaprojektowano aż cztery pokoje, w tym osobny apartament rodziców z własną łazienką, garderobą i balkonem, oraz dużą łazienkę dla wszystkich domowników. Funkcjonalność wnętrza i sensowne wykorzystanie przestrzeni idzie w projekcie w parze z energooszczędnymi rozwiązaniami. Dom jest bardzo dobrze izolowany - w łatwy sposób można go dostosować do standardu NF40. Budynek ma prostą konstrukcję - będzie łatwy w budowie, a dzięki energooszczędności, niedrogi w późniejszym utrzymaniu. Projekt domu Lucky posiadamy również w odbiciu lustrzanym. Zapraszamy !
Komentarze: