Projekt domu D05 to budynek parterowy dla rodziny 4- 5-osobowej, zaprojektowany na trudną działkę z drogą dojazdową od strony południowej. W projekcie domu D05 istnieje możliwość zagospodarowania strychu.





109,01 m² wg PN-70/B-02365
118,02 m² + garaż wg PN-ISO 9836:1997
grawitacyjna
ogrzewanie w projekcie bazowym: kocioł gazowy c,o.
| Ep | 69,1 kWh/(m2) | |
| Ek | 64,0 kWh/(m2 rok) | |
| EUCO | 50,0 kWh/(m2 rok) |
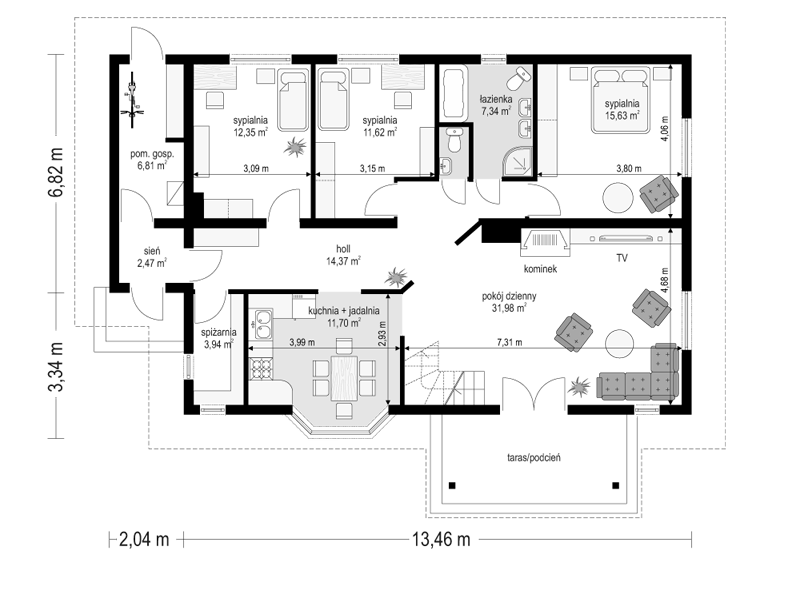
Projekt domu D05 to budynek parterowy dla rodziny 4- 5-osobowej, zaprojektowany na trudną działkę z drogą dojazdową od strony południowej. W projekcie domu D05 istnieje możliwość zagospodarowania strychu. Na parterze budynku znajduje się pokój dzienny, częściowo połączony z holem i kuchnią z wyjściem na taras z podcieniem. Duża kuchnia z aneksem jadalnym otwiera się na przestrzeń przed domem przez przeszklony wykusz. Kotłownia dostępna jest z przedsionka i posiada osobne wyjście na zewnątrz. Pomieszczenie gospodarcze przy kuchni może służyć za pralnię lub spiżarnię. Pracownia posiada projekt D05 w odbiciu lustrzanym.






Komentarze: