Projekt domu Chatka 2 stanowi powiększoną wersję popularnego projektu Chatka. Dom Chatka 2 jest domem jednorodzinnym dla 3-4 osobowej rodziny. Dom Chatka 2 może służyć również jako domek letniskowy.





grawitacyjna
ogrzewanie w projekcie bazowym: kocioł gazowy c,o.
| Ep | 64,4 kWh/(m2) | |
| Ek | 52,7 kWh/(m2 rok) | |
| EUCO | 42,2 kWh/(m2 rok) |
Projekt domu Chatka 2 to jednorodzinny parterowy dom z poddaszem użytkowym. Ten projekt sprawdzi się zarówno jako letniskowy jak i całoroczny. Bryła budynku jest zwieńczona dwuspadowym dachem. W tym domu zaplanowano przestrzeń dla 3-4 osobowej rodziny. Powierzchnia użytkowa domu wynosi 64,78 m2 (kubatura 264 m3). Jest to propozycja dla właścicieli niewielkich działek, minimalne wymiary to:15,04 x 16,50 m.
Dom ma delikatną linię i nawiązuje stylem do architektury podhalańskiej. Duża ilość drewna w elewacji oraz kamienne okładziny w delikatny sposób podkreślają stylistykę. Ten projekt dobrze się będzie prezentować zarówno na Mazurach jak i w górach. Całość zwieńczona jest dachem dwuspadowym o kącie nachylenia 50 stopni. Duży balkon i zadaszony od strony ogrodowej wraz z szerokim przeszklonym wyjściem dają fantastyczny efekt otwarcia na ogród. Strefa wejściowa do budynku jest w przedsionku dołączonym do bocznej ściany. Obszerny taras znajduje się przed frontową ścianą. Na dwóch kolumnach wsparty jest zadaszony balkon. Drewniane elementy architektoniczne dodają całości przytulności.
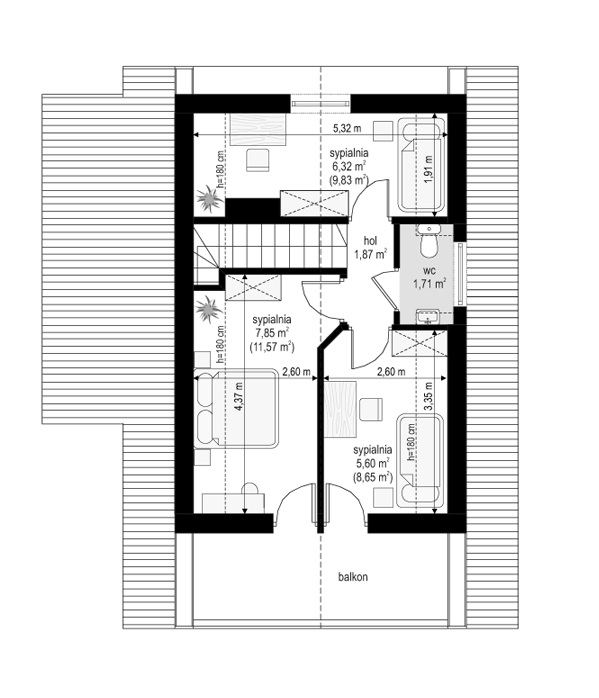
Po wejściu do wnętrza wchodzimy do sieni w której jest miejsce na szafę. Bezpośredni z sieni możemy dostać się do kotłowni lub do salonu. Część dzienna w domu Chatka 2 na parterze to duży salon z wyeksponowanymi schodami i kominkiem, półotwartą kuchnią i łazienką. Na tym samym poziomie jest również przewidziana kotłownia z piecem centralnego ogrzewania i przedsionek. Na poddaszu zaplanowano trzy niewielkie sypianie oraz praktyczne WC. Ozdobą wnętrza i praktycznym dodatkiem jest kominek umiejscowiony pod schodami.
Projekt domu jednorodzinnego Chatka 2 uwzględnia technologię murowaną, co zapewnia trwałość i solidność konstrukcji. Tradycyjna technologia wraz z nowoczesnymi instalacjami korzystnie wpływa na energooszczędność budynku. Zgodnie z szacunkami naszych kosztorysantów koszt budowy projektu wynosi 118 025 zł netto za stan surowy zamknięty, a całkowita inwestycja pod klucz to 245 259 zł netto. Istnieje możliwość dostosowania projektu do standardu NF 40.
W gotowym projekcie Chatka 2 można wprowadzać zmiany, a pracownia do każdej dokumentacji dołącza bezpłatnie „Zgodę na zmiany”, dzięki której modyfikacje do projektu Chatka 2 może wprowadzić każdy projektant z uprawnieniami w Polsce.
Rekomendujemy, by do projektu zamówić dodatkowe pakiety rysunków, które poprawiają wygodę użytkowania budynku, rozszerzają funkcjonalność czy zwiększają energooszczędność budynku. Są to na przykład: pakiet odkurzacz centralny, pakiet kotłownia na paliwo stałe, pakiet ogrzewanie podłogowe.
Zapraszamy do zapoznania się z innymi wariantami tego projektu: Chatka, Chatka drewniana.
MGProjekt posiada plany projektów z odbiciem lustrzanym każdego projektu.






Komentarze: