Projekt domu Miejski 3 to projekt domu jednorodzinnego parterowego z poddaszem użytkowym, na planie prostokąta, przykryty dwuspadowym dachem bez okapów, o bardzo prostej sylwetce, nowoczesnej architekturze i stylistyce „domu-stodoły” - jednak z podniesionymi ścianami kolankowymi, dla zapewnienia maksymalnego wykorzystania powierzchni poddasza użytkowego budynku.





148,08 m² wg PN-70/B-02365
153,26 m² wg PN-ISO 9836:1997
mechaniczna
ogrzewanie w projekcie bazowym: kocioł gazowy c,o.
| Fundamenty: | betonowe ławy i ściany fundamentowe z bloczków betonowych |
| Ściany zewnętrzne: | ściany murowane - pustaki porotherm 25 + styropian |
| Strop: | Teriva |
| Elewacje: | tynk cienkowarstwowy |
| Pokrycie dachu: | blacha na rąbek |
| Ep | 65,9 kWh/(m2) | |
| Ek | 55,9 kWh/(m2 rok) | |
| EUCO | 42,5 kWh/(m2 rok) |
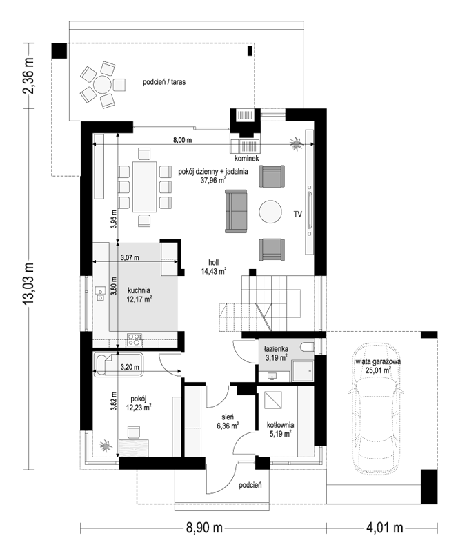
Projekt domu Miejski 3 to projekt domu jednorodzinnego parterowego z poddaszem użytkowym z serii projektów ”Miejski” z naszej pracowni. Budynek na planie prostokąta, przykryty dwuspadowym dachem bez okapów, o bardzo prostej sylwetce, nowoczesnej architekturze i stylistyce „domu-stodoły” - jednak z podniesionymi ścianami kolankowymi, dla zapewnienia maksymalnego wykorzystania powierzchni poddasza użytkowego budynku. Zewnętrzny design budynku to połączenie prostoty, czystości formy i ciekawych architektonicznych detali i smaczków. Elewacje domu podzielono na kontrastujące ze sobą kolorystycznie pola białych tynkowanych ścian, ścian wykończonych szarym tynkiem i fragmentów w pionowej okładzinie drewnianej rombus. Ciekawa kompozycja okien przełamuje monotonię prostopadłościennej bryły. Całość wzbogacają frontowe i ogrodowe zadaszenia, kryjące wiatę garażową, daszek nad podestem wejściowym, oraz zadaszenie części tarasu od strony ogrodowej. Dzięki zachowaniu właściwych proporcji bryły, podziałom elewacji, budynek przyciąga wzrok i ma w sobie coś interesującego – wyróżniającego go spośród wielu podobnych domów z poddaszem. Wnętrze Miejskiego 3 zaprojektowano dzieląc je na część dzienną na parterze i sypialnie na poddaszu. Do domu wchodzimy wygodnym przedsionkiem z szafami do holu i części dziennej. W środkowej części rzutu znajdują się wygodne schody na poddasze widoczne pokoju dziennego. Salon podzielony jest na cześć wypoczynkową - z kanapami, ścianą TV, oraz szerokim przeszkleniem na taras i ogród z wyeksponowanym ozdobnym kominkiem, oraz na jadalnię z dużym stołem i wyjściem na taras przesuwnymi drzwiami HS. Do częściowo otwartej kuchni dostajemy się z holu lub jadalni. Na parterze znajduje się także dodatkowy pokój, łazienka i kotłownia. Na poddaszu zaprojektowane zostały trzy bardzo ładne sypialnie i ogólna łazienka. Dodatkowo sypialnia master posiada własną drugą łazienkę i garderobę. Wnętrze można oczywiście aranżować w dowolny sposób – według koncepcji właścicieli. Nad poddaszem znajduje się sporych rozmiarów stryszek, który można wykorzystać jako magazyn domowych „przydasiów”. W budynku celowo nie przewidziano garażu, wychodząc z założenia, że szkoda jest powierzchni domu na „salon” dla samochodu. Natomiast zaprojektowana została wygodna zadaszona wiata, z daszkiem prowadzącym wprost do drzwi wejściowych domu. Budynek zaprojektowano jako energooszczędny, z dobrymi izolacjami i nowoczesnymi instalacjami. Dom ma prostą konstrukcję i zwartą bryłę, dzięki czemu będzie łatwy w budowie i niedrogi w późniejszej eksploatacji. Miejski 3 to propozycja dla Inwestorów myślących o budowie domu o nowoczesnej architekturze, bezkompromisowym designie. Domu na wskroś praktycznego i funkcjonalnego, który przez wiele lat będzie wymagał minimalnej obsługi, a tego będzie oryginalny, ciekawy architektonicznie i ponadczasowy. Zapraszamy do zapoznania się ze wszystkimi domkami z tej serii: projekt domu Miejski, projekt domu Miejski 2, projekt domu Miejski 3, projekt domu Miejski 4.
Komentarze: