Projekt domu Dom z Widokiem 6 jest kolejną wersją popularnego projektu Dom z Wwidokiem. To wariant o zupełnie inaczej zaprojektowanym wnętrzu. Mianowicie część dzienna, salon i tarasy umieszczono tu w tylnej części domu.





179,45 m² wg PN-70/B-02365
202,96 m² wg PN-ISO 9836:1997
mechaniczno nawiewno wywiewna
ogrzewanie w projekcie bazowym: kocioł gazowy c,o.
| Ep | 68,0 kWh/(m2) | |
| Ek | 60,5 kWh/(m2 rok) | |
| EUCO | 31,8 kWh/(m2 rok) |
(Projekt z wentylacją mechaniczną w standardzie)
Projekt domu Dom z Widokiem 6 to nowoczesna piętrowa willa obudowana parterowymi, mniejszymi bryłami. Doskonale nadaje się na klasyczną działkę z ogrodem za domem oraz wejściem i wjazdem na działkę od nienasłonecznionej części działki. Cały budynek przykryty jest wielospadowymi łagodnymi dachami z szerokimi okapami. Powierzchnia użytkowa domu wynosi blisko 180 m2 (kubatura 956 m3). W zaprojektowanej przez nas przestrzeni komfortowo może mieszkać 6 użytkowników. Wielkość działki na jakiej można zrealizować ten projekt ma minimalne wymiary: 27,52 x 22,32 m.
Projekt domu Dom z Widokiem 6 to wyjątkowy projekt. Łączy w sobie wszystkie ciekawe elementy swoich poprzedników, ale ma też dodatkowe atrakcje, dające razem udaną propozycję pięknej nowoczesnej willi. Tak jak w pozostałych Domach z Widokiem piętrowy rdzeń domu obudowany jest tutaj parterowymi mniejszymi bryłami. Motywem przewodnim są narożne duże okna - przeszklenia salonu, jadalni, kuchni. Szklany dwukondygnacyjny narożnik salonu z pustką ozdabia tym razem elewację tylną - ogrodową. Dom urozmaicony jest kamiennymi i drewnianymi okładzinami ścian oraz daszkami, balkonami i pergolą nad tarasem. Wszystkie elementy tworzą spójną i elegancką całość.
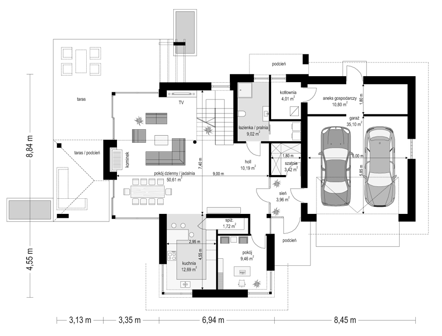
Poza zewnętrznymi walorami, równie ciekawe jest wnętrze Domu z Widokiem 6. Centralną część parteru stanowi piękny salon z pustką nad jego fragmentem oraz nad schodami będącymi ozdobą wnętrza. Z antresoli na piętrze możemy podziwiać pokój dzienny i widok na ogród. Do domu dostajemy się przeszklonym narożnym wejściem do przedsionka, a stąd do holu i pokoju dziennego. Przy wejściu mamy dodatkowy pokój – gabinet, a po przeciwległej stronie holu łazienkę z pralnią. Z przedsionka możemy przejść do garażu i pomieszczeń gospodarczych z kotłownią. Ładna kuchnia z dodatkową spiżarnią dostępna jest od strony holu i jadalni. Tarasy wokół przestrzeni dziennej układają się w literę L - część tarasu jest zadaszona. Piętro domu to trzy sypialnie i duża, centralna łazienka. Sypialnia rodziców i jedna sypialni dziecięcych ma garderobę. Druga sypialnia dzieci - szafę wbudowaną. Część powierzchni piętra zajmuje malownicza antresola i otwarcie przestrzenne na parter. Nad garażem znajduje się stryszek gospodarczy dostępny z holu. Na parterze zaprojektowano dwustanowiskowy garaż z dużym aneksem gospodarczym, co ułatwi przechowywanie.
Projekt domu Dom z Widokiem 6 jest nieco mniejszy od swoich poprzedników, ale dzięki temu tańszy w realizacji. Jednocześnie dom nie traci na swojej atrakcyjności i na poczuciu przestronności jego wnętrza. Istnieje możliwość dostosowania projektu do standardu NF 40.
W gotowym projekcie domu Dom z Widokiem można wprowadzać zmiany, a pracownia do każdej dokumentacji dołącza bezpłatnie „Zgodę na zmiany", dzięki której modyfikacje do projektu może wprowadzić każdy projektant z uprawnieniami w Polsce.
Do projektu Dom z Widokiem można zamówić dodatkowe pakiety rysunków, które rozszerzają funkcjonalność domu, poprawiają wygodę użytkowania budynku czy energooszczędność projektu Szpak. Są to na przykład pakiet kotłownia na paliwo stałe, dziennik budowy, projekty altan ogrodowych czy instalacja fotowoltaiczna.
Projekt domu Dom z Widokiem 6 jest doskonałą propozycją dla inwestorów marzących o reprezentacyjnym, eleganckim, piętrowym domu. Osoby decydujące się na zakup tego projektu doceniają nowoczesną architekturę oraz oryginalne wnętrza.
Zapraszamy do zapoznania się z pełną ofertą pracowni MG Projekt tej serii: Dom z Widokiem, Dom z Widokiem 2, Dom z Widokiem 2C, Dom z Widokiem 3, Dom z Widokiem 3F, Dom z Widokiem 4, Dom z Widokiem 5, Dom z Widokiem 6B, Dom z Widokiem B, Dom z Widokiem E.




Komentarze: