Projekt domu Wymarzony 9 C jest to budynek parterowy, zbudowany na planie prostokąta, przeznaczony dla 4-osobowej rodziny. Bryła domu przykryta jest dwuspadowym bezokapowym dachem, dodatkowo do głównej bryły dobudowana jest wiata garażowa.







118,01 m2 wg PN-70/B-02365
121,49 m2 + wiata wg PN-ISO 9836:1997
mechaniczna z rekuperatorem
ogrzewanie w projekcie bazowym: kocioł gazowy c,o.
| Fundamenty: | betonowe ławy i ściany fundamentowe z bloczków betonowych |
| Ściany zewnętrzne: | ściany murowane - bloczki gazobeton + styropian |
| Strop: | monolityczny betonowy |
| Elewacje: | płytki klinkierowe |
| Pokrycie dachu: | dachówka |
| Ep | 69,5 kWh/(m2) | |
| Ek | 55,4 kWh/(m2 rok) | |
| EUCO | 29,7 kWh/(m2 rok) |
(Projekt z wentylacją mechaniczną w standardzie)
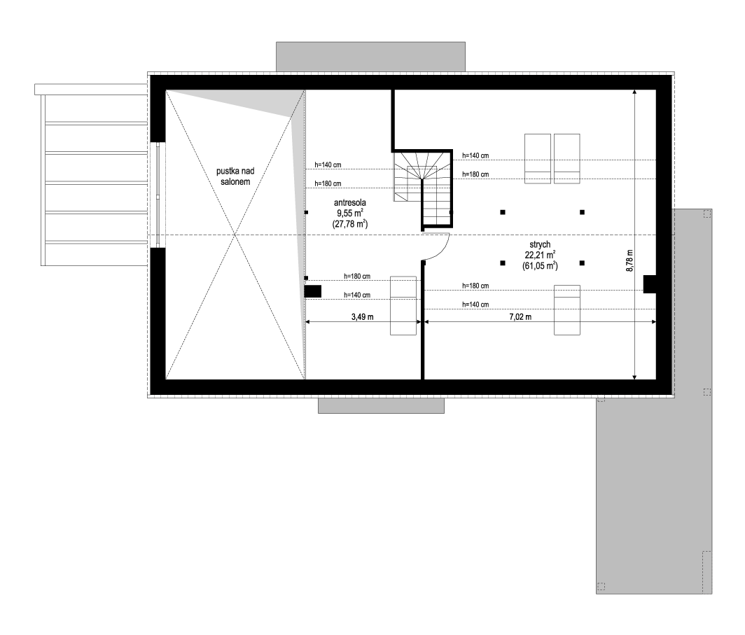
Projekt domu Wymarzony 9 D jest wersją wariantową projektu domu jednorodzinnego z serii „Wymarzony”. Budynek parterowy, zbudowany na planie prostokąta, przeznaczony dla 4-osobowej rodziny. Bryła domu przykryta jest dwuspadowym bezokapowym dachem, dodatkowo do głównej bryły dobudowana jest wiata garażowa. Układ funkcjonalny wnętrze przewiduje : cześć dzienną z salonem i kuchnią, oraz trzy pokoje sypialne i gabinet. Nad parterem zaprojektowano pustkę nas pokojem dziennym z antresolą, oraz przestrzeń strychową o dowolnym przeznaczeniu. W budynku znajdują się dwa pomieszczenia gospodarcze : kotłownia, oraz pralnia ze spiżarnią. Pomieszczenia gospodarcze mają osobne wyjścia na zewnątrz. Minimalistyczna architektura budynku została zestawiona z wykończeniem fasad w płytce klinkierowej, dzięki czemu dom zyskał bardziej oryginalny wygląd i styl. Dodatkowo ceglane elewacje podkreślają trwałość i solidność budynku. Duże przeszklenia salonu urozmaicają bryłę i otwierają przestrzennie wnętrze na otaczający dom ogród, oraz dodatkowo powiększają optycznie wnętrze. Pokój dzienny podzielony został na cześć wypoczynkową – ze ścianą telewizyjno- kominkową i jadalnie, która łączy się przestrzenie z kuchnią poprzez oddzielającą pomieszczenia wyspę. Nad całością góruje otwarta aż do kalenicy dachu pustka nad salonem. W części prywatnej przewidziano trzy sypialnie, w tym sypialnię master z własną garderobą, oraz pokój do pracy – domowe biuro. Nad parterem znajduje się obszerna przestrzeń strychowa, która może pozostać strychem, albo można ją dowolnie zaadaptować i wykorzystać na dodatkowe pomieszczenia. W budynku zastosowano nowoczesne materiały i technologie, energooszczędne instalacje i dobre izolacje przegród zewnętrznych, dzięki czemu będzie on niedrogi w utrzymaniu i łatwy w eksploatacji. Konstrukcja domu jest prosta i nie będzie problematyczna w budowie. „Wymarzony 9 D” to doskonała propozycja dla Inwestorów myślących o budowie wygodnego i funkcjonalnego parterowego domu jednorodzinnego, o nowoczesnej i oryginalnej architekturze wyróżniającej się od otaczających zwykłych domów. Zapraszamy !
Komentarze: