Projekt domu Viking 3 to kolejny dom z serii „Viking” - tym razem najmniejszy z kolekcji, parterowy, z poddaszem użytkowym, bez garażu, przeznaczony dla 3- 4-osobowej rodziny.





121,51 m² wg PN-70/B-02365
125,63 m² wg PN-ISO 9836:1997
wentylacja mechaniczna z rekuperacją
ogrzewanie w projekcie bazowym: kocioł gazowy c,o.
| Ep | 69,2 kWh/(m2) | |
| Ek | 61,1 kWh/(m2 rok) | |
| EUCO | 26,5 kWh/(m2 rok) |
(Projekt z wentylacją mechaniczną w standardzie)
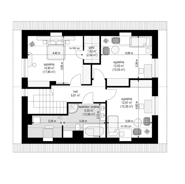
Projekt domu Viking 3 to kolejny dom z serii „Viking” - tym razem najmniejszy z kolekcji, parterowy, z poddaszem użytkowym, bez garażu, przeznaczony dla 3- 4-osobowej rodziny. Budynek ma zwartą prostokątną bryłę przykrytą dwuspadowym symetrycznym dachem. Nowoczesne materiały i detale dają Vikingowi 3 dynamiczny a zarazem pełen uroku wygląd zewnętrzny. Duże przeszklenia, drewniane i włóknowo -cementowe okładziny ścian, podział elewacji na poziome pasy urozmaicają elewacje budynku. Wejście podkreślono podcieniem z dużymi drzwiami z bocznym naświetlem. Elewację ogrodową ozdobiono szerokimi przeszkleniami salonu i jadalni, otwierającymi wnętrze na ogród, oraz narożnym podcieniem stanowiącym częściowe zadaszenie tarasu. Wnętrze domu: na parterze znajduje się salon z aneksem jadalnym, połączony z holem, kuchnia ze spiżarką, kotłownia i wc. Z holu dostępne są wygodne, dobrze oświetlone schody na poddasze. Na górze mamy trzy sypialnie z łazienką i aneksem pralni. Sypialnia rodziców ma swoją garderobę, a pozostałe sypialnie - szafy wnękowe. Projekt domu Viking 3 to prosty, nowoczesny, funkcjonalnie zaprojektowany dom. Będzie niedrogi w budowie i późniejszym utrzymaniu. Jest to propozycja dla Inwestorów, którzy mają nie za wielką działkę i nie mogą lub nie chcą wydać dużych pieniędzy na budowę swojego wymarzonego M. Projekt domu Viking 3 dostępny jest także w odbiciu lustrzanym w wersji bazowej (projekt domu Viking), wersję z pojedynczym garażem (projekt domu Viking 2), z zadaszeniem nad garażem (projekt domu Viking 4), oraz największą z serii (projekt domu Viking 5). Projekt bardzo łatwo można dostosować do standardu NF40. Zapraszamy.
Komentarze: