Projekt domu Uroczy to parterowy dom jednorodzinny o wdzięcznej nazwie, zaprojektowany przez MGProjekt z myślą o 3- 5-osobowej rodzinie.





146,47 m² wg PN-70/B-02365
152,07 m² + garaż wg PN-ISO 9836:1997
wentylacja mechaniczna z rekuperacją
ogrzewanie w projekcie bazowym: kocioł gazowy c,o.
| Ep | 68,5 kWh/(m2) | |
| Ek | 62,2 kWh/(m2 rok) | |
| EUCO | 34,5 kWh/(m2 rok) |
Projekt domu Uroczy to parterowy dom jednorodzinny zaprojektowany na planie litery T. Wygodnie mieszkać może w nim 3- 5-użytkowników. Projekt domu Uroczy został zaplanowany w taki sposób, aby nadawał się do zastosowania zarówno na działkę z wjazdem od północy, jak i od południa od nasłonecznionej strony. Powierzchnia użytkowa domu Uroczy wynosi 146,47 m2 (kubatura 874 m3). Minimalna wielkość działki na jakiej można zrealizować projekt to: 21,99 x 29,49 m. Jego rozłożysty plan parteru, na którym zmieszczono wszystkie funkcje domu przykryto wielospadowym dachem kryjącym przestronny strych. Dzięki dobremu doświetleniu salonu z trzech stron i przesunięciu tarasów na boczną elewację zarówno wnętrza jak i tarasy będą bardzo dobrze doświetlone.
Architektura domku Uroczy utrzymana jest w stylu komfortowej podmiejskiej willi - nowoczesnej, ale osadzonej w tradycyjnej bryle. Duże przeszklenia otwierają wnętrze budynku na otaczający ogród. Bryła domu Uroczy komponuje się dobrze z okolicznym krajobrazem.
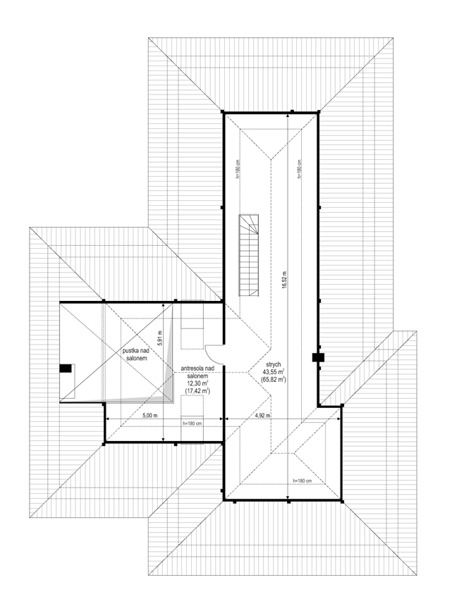
Wnętrze budynku Uroczy podzielono na część dzienną i osobną część nocną z pokojami mieszkańców. Do projektu Uroczy wchodzimy pięknymi szerokimi drzwiami z naświetlami do bardzo obszernego i tym samym wygodnego przedsionka, a stamtąd dalej do holu i części dziennej domu. W projekcie domku Uroczy połączony salon z jadalnią, hol i kuchnia stanowią wspólne wnętrze dzienne. Przeszklony narożnik jadalni projektu Uroczy otwiera wnętrze domu na kameralny taras z dużym podcieniem. Z okna kuchennego między szafkami można obserwować przyjęcia na tarasie. Obszerna kuchnia ze spiżarką otwiera się na salon półwyspem z hokerami. Nad częścią dzienną projektu Uroczy otwiera się pustka nad salonem z widocznym dachem i antresolą na strychu. Z sieni projektu domu Uroczy przechodzimy też do dwustanowiskowego garażu i kotłowni. Część nocna domu to apartament rodziców z własną łazienką, garderobą i tarasem, dwie sypialnie dziecięce z łazienką oraz dodatkowy pokój - np. gabinet. Pokoje można podzielić w łatwy sposób inaczej. W projekcie domku Uroczy nad parterem mamy obszerny strych oraz antresolę nad salonem. Strych można dowolnie zagospodarować - pozostawić go jako domowy magazyn lub zaadaptować go na poddasze użytkowe zwiększając w ten sposób powierzchnię użytkową budynku.
Projekt domu Uroczy został zaprojektowany jako energooszczędny, nieskomplikowany w budowie i maksymalnie funkcjonalny. Dzięki zoptymalizowanej bryle koszty budowy nie są przesadzone. Istnieje możliwość dostosowania projektu do standardu NF40.
W gotowym projekcie domu można wprowadzać zmiany, a pracownia do każdej dokumentacji dołącza bezpłatnie „Zgodę na zmianę”, dzięki której modyfikacje może wprowadzić każdy projektant z uprawnieniami w Polsce.
Do projektu można zamówić dodatkowe pakiety rysunków, które rozszerzają funkcjonalność domu, poprawiają wygodę użytkowania budynku. Polecamy zapoznanie się z propozycjami pakietów: klimatyzacja w domu, instalacja solarna czy ogrzewanie podłogowe.
To wymarzona propozycja dla ambitnych i ceniących estetykę Inwestorów.
Pracownia MGProjekt dysponuje też odbicie lustrzanym projektu domku Uroczy z garażem po lewej stronie.






Komentarze: