




grawitacyjna
ogrzewanie w projekcie bazowym: kocioł gazowy c,o.
| Ep | 69,9 kWh/(m2) | |
| Ek | 60,0 kWh/(m2 rok) | |
| EUCO | 51,2 kWh/(m2 rok) |
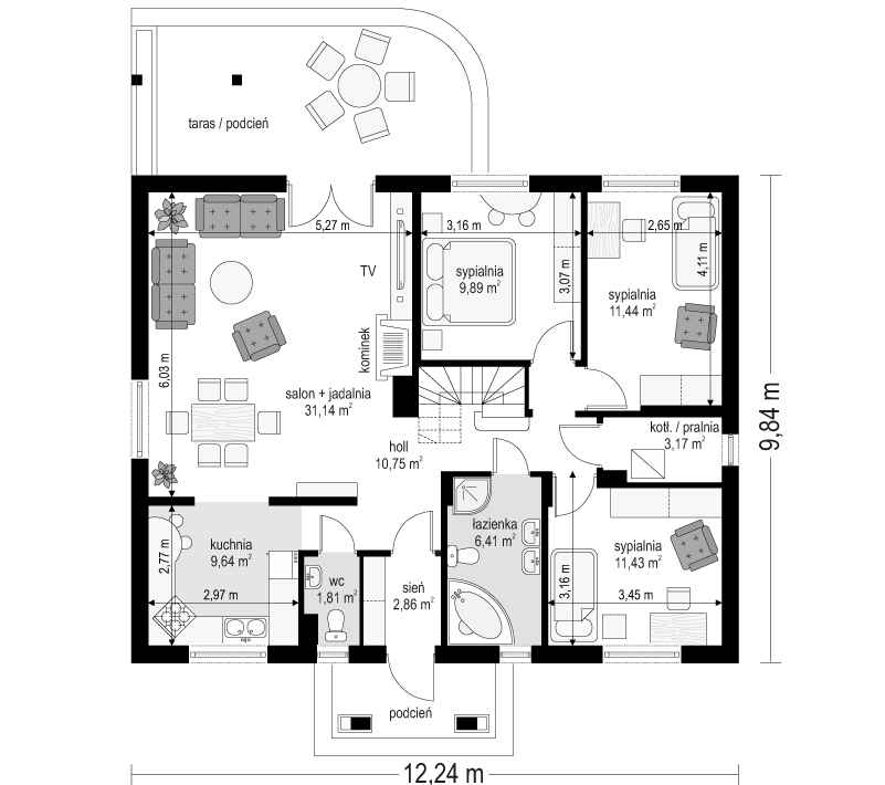
Projekt Niezapominajka to jednorodzinny, parterowy dom przeznaczony dla czteroosobowej rodziny. Prostokątna bryła budynku została zwieńczona dwuspadowym dachem. Powierzchnia użytkowa domu wynosi prawie 96 m2 (kubatura 498 m3). Projekt można zrealizować na działce o minimalnych wymiarach: 20,24 x 19,16 m.
Projekt domu Niezapominajka architektonicznie nawiązuje do typowej, tradycyjnej stylistyki. Front domu z zaakcentowanym gankiem wejściowym wspartym na dwóch kolumnach z oknami po bokach przypomina polski dworek. Elewacja tylna została podporządkowana raczej funkcjonalności i zrezygnowano tu z symetrycznego układu - częściowo zadaszony taras ogrodowy stanowi przedłużenie salonu. Prosta bryła zaplanowana jest na planie prostokąta i zakończona dachem dwuspadowym o kącie nachylenia 30 stopni. Ozdobą jasnej elewacji są okiennice, płytki elewacyjne i drewniane panele. Od strony ogrodu niewielki okap naturalnie daje osłonę przed słońcem czy deszczem.
Niezapominajka to kompaktowy dom, który w swoich wnętrzach kryje dobrze przemyślany układ pomieszczeń. Wnętrze podzielono na część dzienną i nocną. Do wnętrza kierujemy się przez niewielką sień. Obok wejścia zaplanowane jest WC i w pobliżu otwarta kuchnia na hol i salon z jadalnia. Kuchnia zaplanowana jest w kształcie litery U. Przestronny salon z jadalnią wyposażony jest w zestaw wypoczynkowy, ścianę telewizyjną i ozdobny kominek. Dwuskrzydłowe okna zapraszają na zewnętrzny taras. W holu zaprojektowano miejsce na schody na strych. W części nocnej są trzy sypialnie o zbliżonych rozmiarach. Na końcu holu jest niewielka kotłownia w której można uwzględnić pralnię oraz zainstalować piec gazowy.
Projekt domu Niezapominajka stanowi świetną propozycję dla Inwestorów chcących niedrogo wybudować dom. Ten projekt to również dobre rozwiązanie dla tych, którzy chcą zostawić sobie możliwość wykończenia w drugim etapie dodatkowej przestrzeni na strychu. Istnieje możliwość dostosowania projektu do standardu NF 40.
Pracownia posiada wersję odbicia lustrzanego projektu Niezapominajka.
W gotowym projekcie domu Niezapominajka można wprowadzać zmiany, a pracownia do każdej dokumentacji dołącza bezpłatnie „Zgodę na zmiany", dzięki której modyfikacje do projektu może wprowadzić każdy projektant z uprawnieniami w Polsce.
Do projektu Hiacynt Niezapominajka zamówić dodatkowe pakiety rysunków, które rozszerzają funkcjonalność domu, poprawiają wygodę użytkowania budynku czy energooszczędność projektu. Są to na przykład pakiet kotłownia na paliwo stałe, dziennik budowy, tablica budowy czy instalacja solarna.
Zapraszamy do zapoznania się z innymi wariantami domu Niezapominajka: projekt domu Niezapominajka z garażem, projekt domu Niezapominajka z garażem 2






Komentarze: