MG 3 wariant 18 drewniany - można zamówić sam projekt, albo zamówić u nas cały dom w technologii modułowej szkieletowej drewnianej. Zapraszamy !







89,72 m2 wg PN-70/B-02365
89,72 m2 wg PN-ISO 9836:1997
grawitacyjna
ogrzewanie w projekcie bazowym: kocioł gazowy c,o.
| Fundamenty: | płyta betonowa fundamentowa |
| Ściany zewnętrzne: | szkieletowe drewniane + wełna mineralna |
| Strop: | drewniany belkowy |
| Elewacje: | deska elewacyjna |
| Pokrycie dachu: | blacha na rąbek lub dachówka |
| Ep | 67,6 kWh/(m2) | |
| Ek | 54,8 kWh/(m2 rok) | |
| EUCO | 45,3 kWh/(m2 rok) |
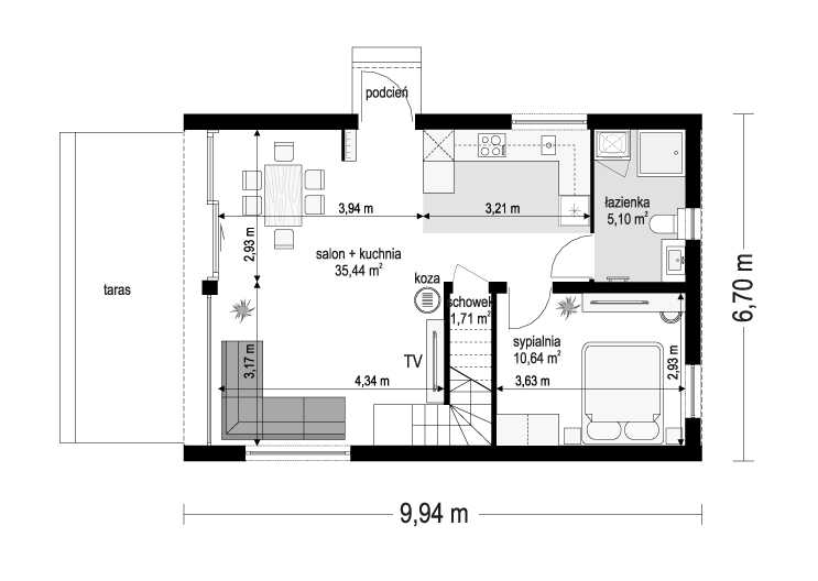
Projekt domu MG 3 wariant 18 - w wersji szkieletowej drewnianej. MG 3 v 18 to projekt niedużego parterowego domu jednorodzinnego z poddaszem użytkowym, w modnej architekturze nowoczesnej stodoły, przeznaczonego dla 3-5 osobowej rodziny. Budynek ma prostokątną bryłę, przykrytą dwuspadowym dachem. Dach bazowo ma kąt nachylenia 37 stopni - można go dostosować do wymagań urbanistycznych w razie potrzeby. Konstrukcja budynku została zaprojektowana jako szkieletowa drewniana. Ściany, strop nad parterem, oraz konstrukcja dachu zaprojektowana jest z drewna konstrukcyjnego C24, oraz KVH. Przegrody zewnętrzne izolowane są wełną mineralną o dobrej lambdzie. Dodatkowo można zwiększyć izolację ścian i dachu o warstwę wełny drzewnej - zapobiegającej przegrzewaniu wnętrza. Wnętrze domu przewidziano z dużą ilością ozdobnych drewnianych elementów wykończeniowych, jak ozdobne drewniane suity, lub drewniana okładzina części ścian. Wnętrze można oczywiście wykończyć też bez drewnianych dodatków - z okładziną z płyt g-k lub fermacell. Główną atrakcją wnętrza domu jest oczywiście przeszklona ściana salonu, łącząca przestrzeń dzienną z tarasem i otaczającym ogrodem. Dzięki otwartemu wnętrzu parteru z dużymi przeszkleniami, ten nieduży 90-metrowy dom sprawia wrażenie znacznie większego. Poza częścią dzienną z salonem i kuchnią, pozostałe pomieszczenia we wnętrzu to - na parterze : dodatkowy pokój ( sypialnia lub gabinet ), łazienka i schowek gospodarczy, oraz na poddaszu : trzy sypialnie, łazienka i garderoba. Instalacje grzewcze : w budynku przewidziano zasilanie instalacji c.o. kotłem gazowym dwufunkcyjnym, umieszczonym w pomieszczeniu łazienki, lub zamiennie niedużą pompę ciepła powietrze-woda, również umieszczoną w łazience. Posiadamy też wariant ogrzewania elektrycznego, z grzejnikami elektrycznymi i klimatyzatorami z funkcją grzania. Dodatkowe źródło ciepła może stanowić kominek typu koza umieszczony w salonie. Wentylacja w budynku zaprojektowana jest jako mechaniczna z rekuperacją. Można też zastosować tradycyjną wentylację grawitacyjną. Wszystkie przegrody zewnętrzne : ściany, dach - zaprojektowano jako bardzo dobrze ocieplone. Budynek ma zwartą bryłę i niedużą kubaturę. Budynek jest energooszczędny - tani i prosty w eksploatacji. Elewacje zewnętrzne domu bazowo zaproponowano z okładziny drewnianej. Dom można również wykończyć tynkiem cienkowarstwowym - dowolnie, wedle gustu przyszłych właścicieli. MG 3 wariant 18 drewniany, to doskonała propozycja dla osób planujących budowę prostego, niedużego domu, funkcjonalnego w użytkowaniu i ekonomicznego w eksploatacji. Dom MG 3 należy do serii projektów z naszej firmy produkującej gotowe domy modułowe : DMH - Dream Mobil House / Dream Wood House. Projekt typowy w wersji szkieletowej drewnianej, kierujemy do osób, które chcą samodzielnie wybudować swój przyszły dom z lokalnym wykonawcą, według tego projektu. Natomiast dla osób chcących zamówić kompleksowo gotowy dom w jednaj firmie, zapraszamy do współpracy z nami w ramach naszej firmy DMH. Zapraszamy !
Komentarze: