Projekt domu Dominik to elegancki, nieduży dom jednorodzinny dla rodziny nawet 7-osobowej. Kopertowy dach, ozdobny portyk wejściowy i okładziny klinkierowe tworzą udane połączenie.





107,45 m² wg PN-70/B-02365
110.82 m² wg PN-ISO 9836:1997
grawitacyjna
ogrzewanie w projekcie bazowym: kocioł gazowy c,o.
| Ep | 67,2 kWh/(m2) | |
| Ek | 54,2 kWh/(m2 rok) | |
| EUCO | 42,5 kWh/(m2 rok) |
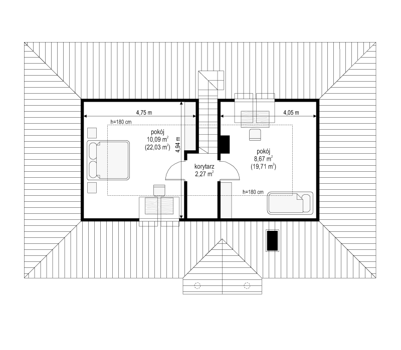
Projekt domu Dominik to elegancki, nieduży dom jednorodzinny dla rodziny nawet 7-osobowej. Kopertowy dach, ozdobny portyk wejściowy i okładziny klinkierowe tworzą udane połączenie. Wnętrze domu - przy niewielkiej powierzchni udało się pomieścić salon oraz pięć pokoi - rzecz niespotykana w małych domach. Dom Dominik został zaprojektowany w taki sposób, aby poddasze można wykończyć w drugim etapie budowy. Pracownia dysponuje także wersją projektu Dominik w odbiciu lustrzanym. Zapraszamy do zapoznania się z pełną ofertą pracowni MG Projekt: projekt domu Dominik 2.






Komentarze: