Projekt domu Przyjemny 8, przeznaczony dla 3-5 osobowej rodziny. Projekt domu parterowego z poddaszem użytkowym, z bryłką w kształcie litery L, przykryty dwuspadowym dachem, z garażem jednostanowiskowym. Architektura budynku łączy w sobie tradycyjną bryłę z nowoczesnymi detalami. Dwuspadowy dach z okapami i szeroką ścianą frontową z pięknym przeszkleniem.







113,36 m2 wg PN-70/B-02365
116,85 m2 + garaż wg PN-ISO 9836:1997
mechaniczna z rekuperatorem
ogrzewanie w projekcie bazowym: kocioł gazowy c,o.
| Fundamenty: | betonowe ławy i ściany fundamentowe z bloczków betonowych |
| Ściany zewnętrzne: | ściany murowane - bloczki gazobeton + styropian |
| Strop: | betonowy teriva |
| Elewacje: | tynk cienkowarstwowy |
| Pokrycie dachu: | dachówka |
| Ep | 68,2 kWh/(m2) | |
| Ek | 56,7 kWh/(m2 rok) | |
| EUCO | 48,7 kWh/(m2 rok) |
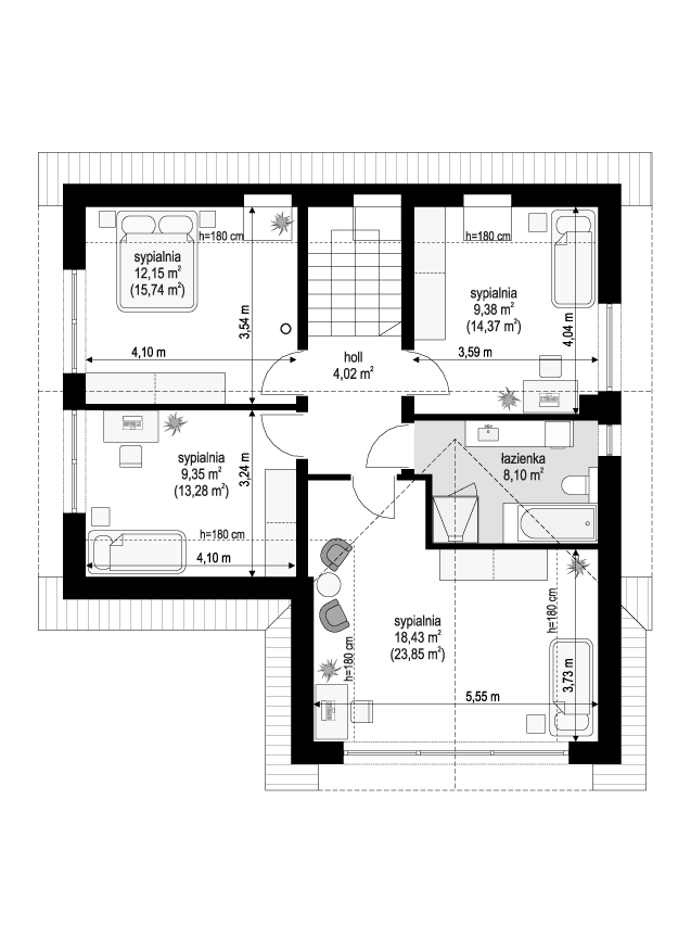
Projekt domu Przyjemny 8, przeznaczony dla 3-5 osobowej rodziny. Projekt domu parterowego z poddaszem użytkowym, z bryłką w kształcie litery L, przykryty dwuspadowym dachem, z garażem jednostanowiskowym. Architektura budynku łączy w sobie tradycyjną bryłę z nowoczesnymi detalami. Dwuspadowy dach z okapami i szeroką ścianą frontową z pięknym przeszkleniem. Przyjemny 8 jest funkcjonalny, ma spokojną stonowaną, ponadczasową stylistykę. W budynkuudało się uzyskać wygodne i funkcjonalne wnętrze pozwalające komfortowe mieszkać minimum czteroosobowej rodzinie. Na parterze zaprojektowano przestrzeń dzienną salonu, holu i kuchni, kotłownię dostępną z garażu i dodatkowy pokój. Na poddaszu zaprojektowano cztery sypialnie sypialnie, tą nad garażem z racji dużej przestrzeni można przekształcić w pokój fitness lub studio. Poddasze, dzięki wysokiej ścianie kolankowej ma niewielkie skosy. Na parterze w pokoju dziennym - szerokie przeszklenie balkonowe otwiera wnętrze na taras i ogród. Zaproponowaliśmy tam drzwi przesuwne, ale można je oczywiście zastąpić tańszymi drzwiami balkonowymi z szerokim oknem do ziemi. Daszek nad tarasem to pergola o konstrukcji drewnianej lub aluminiowej. Można też zastąpić pergolę markizą lub żaglem - dowolnie. Nie jest to element stały budynku. „Przyjemnego 8” zaprojektowaliśmy jako dom maksymalnie prosty i łatwy w budowie. Jego prosta konstrukcja będzie łatwym zadaniem dla dowolnej ekipy. Nie ma tutaj dużych podciągów, podrażających konstrukcję elementów stalowych. Prosta bryła bez udziwnień i dobre izolacje termiczne przegród dają w efekcie dom energooszczędny. Instalacja c.o. bazowo zasilana jest z kotła gazowego, ale można też zastosować tutaj kocioł na paliwo stałe, albo pompę ciepła. „Przyjemny 8” to doskonała propozycja dla osób planujących budowę niedużego, funkcjonalnego domu, za skończoną określoną kwotę -bez przesady i bujania w obłokach. Dla Inwestorów wolących mieć dom mniejszy, za to lepiej i do końca wykończony. To projekt dla osób pragnących architektury ponadczasowej, osadzonej w tradycji, w nowoczesnym ujęciu, która nie zestarzeje się wraz z odchodzącymi chwilowymi modami. Zapraszamy !
Komentarze: