Projekt domu Przyjemny, przeznaczony dla 4-5osobowej rodziny. Budynek parterowy z poddaszem użytkowym, zbudowany na prostokątnym rzucie, przykryty dwuspadowym dachem, z dwiema lukarnami od frontu i od ogrodu. Architektura domu łączy w sobie tradycyjną bryłę z nowoczesnymi detalami.







89,19 m2 wg PN-70/B-02365
93,93 m2 wg PN-ISO 9836:1997
mechaniczna z rekuperatorem
ogrzewanie w projekcie bazowym: kocioł gazowy c,o.
| Fundamenty: | betonowe ławy i ściany fundamentowe z bloczków betonowych |
| Ściany zewnętrzne: | ściany murowane - pustaki gazobetonowe + styropian |
| Strop: | Teriva |
| Elewacje: | tynk cienkowarstwowy |
| Pokrycie dachu: | dachówka |
| Ep | 68,5 kWh/(m2) | |
| Ek | 55,8 kWh/(m2 rok) | |
| EUCO | 47,3 kWh/(m2 rok) |
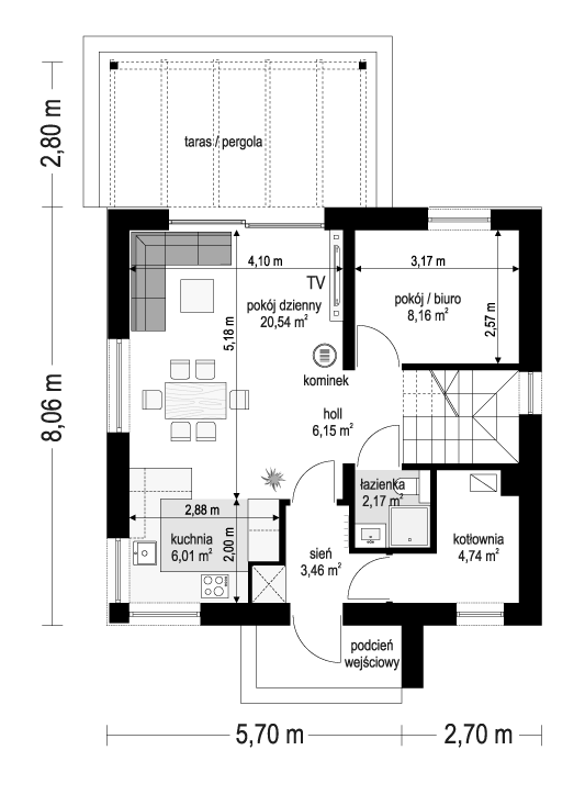
Projekt domu Przyjemny, przeznaczony dla 4-5osobowej rodziny. Budynek parterowy z poddaszem użytkowym, zbudowany na prostokątnym rzucie, przykryty dwuspadowym dachem, z dwiema lukarnami od frontu i od ogrodu. Architektura domu łączy w sobie tradycyjną bryłę z nowoczesnymi detalami. Dwuspadowy symetryczny dach z okapami i szerokimi lukarnami, koresponduje tutaj z nowoczesnym zadaszeniem nad podestem wejściowym, kontrastowymi fragmentami elewacji w narożnikach ścian, oraz lekkim zadaszeniem nad tarasem ogrodowym. Dom charakteryzuje funkcjonalność, spokojna stylistyka, oraz wrażenie solidności i trwałości. Budynek ma niewielkie wymiary i powierzchnię, jednak udało się w nim uzyskać wygodne i funkcjonalne wnętrze, pozwalające komfortowo mieszkać normalnej pełnej rodzinie. Budynek ma powierzchnię zabudowy poniżej 70 m2 i powierzchnię użytkową na obu kondygnacjach poniżej 90 m2 - zatem można go budować na zgłoszenie, czyli uproszczone pozwolenie na budowę. Na parterze domu mamy przestrzeń dzienną salonu, holu ze schodami i kuchni, sporą kotłownię dostępną z przedsionka i dodatkowy pokój. Na poddaszu mieszczą się trzy pokoje sypialne. Poddasze, dzięki wysokiej ścianie kolankowej i lukarnom ma niewielkie skosy. Wracając do salonu - na uwagę zasługuje szerokie przeszklenie otwierające wnętrze na taras i ogród. Zaproponowaliśmy tam drzwi przesuwne, ale można je oczywiście zastąpić tańszymi drzwiami balkonowymi z szerokim oknem do ziemi.Daszek nad tarasem to pergola przykryta poliwęglanowymi płytami. Konstrukcja może być drewniana lub aluminiowa. Można też zastąpić pergolę markizą lub żaglem - dowolnie. Nie jest to element stały budynku. „Przyjemnego” zaprojektowaliśmy jako maksymalnie prosty i łatwy w budowie dom. Jego prosta konstrukcja będzie łatwym zadaniem dla dowolnej ekipy. Nie ma tutaj dużych podciągów, podrażających konstrukcję elementów stalowych, strop jest gęstożebrowy teriva. Ściany z bloczków gazobetonowych. Prosta bryła bez udziwnień i dobre izolacje termiczne przegród dają w efekcie dom energooszczędny. Instalacja c.o. bazowo zasilana jest z kotła gazowego, ale można też zastosować tutaj kocioł na paliwo stałe, albo pompę ciepła. „Przyjemny” to doskonała propozycja dla osób planujących budowę niedużego, funkcjonalnego domu jednorodzinnego, za skończoną określoną kwotę -bez przesady i bujania w obłokach. Dla Inwestorów wolących mieć dom mniejszy, za to lepiej i do końca wykończony. To projekt dla osób chcących architektury ponadczasowej, osadzonej w tradycji w nowoczesnym ujęciu, która nie zestarzeje się wraz z odchodzącymi chwilowymi modami. Zapraszamy !
Komentarze: