Projekt domu Przyjemny, przeznaczony dla 4-5osobowej rodziny. Budynek parterowy z poddaszem użytkowym, zbudowany na prostokątnym rzucie, przykryty dwuspadowym dachem, z dwiema lukarnami od frontu i od ogrodu. Architektura domu łączy w sobie tradycyjną bryłę z nowoczesnymi detalami.







89,19 m2 wg PN-70/B-02365
93,93 m2 wg PN-ISO 9836:1997
grawitacyjna
ogrzewanie w projekcie bazowym: kocioł gazowy c,o.
| Ep | akt,0 kWh/(m2) | |
| Ek | akt,0 kWh/(m2 rok) | |
| EUCO | akt,0 kWh/(m2 rok) |
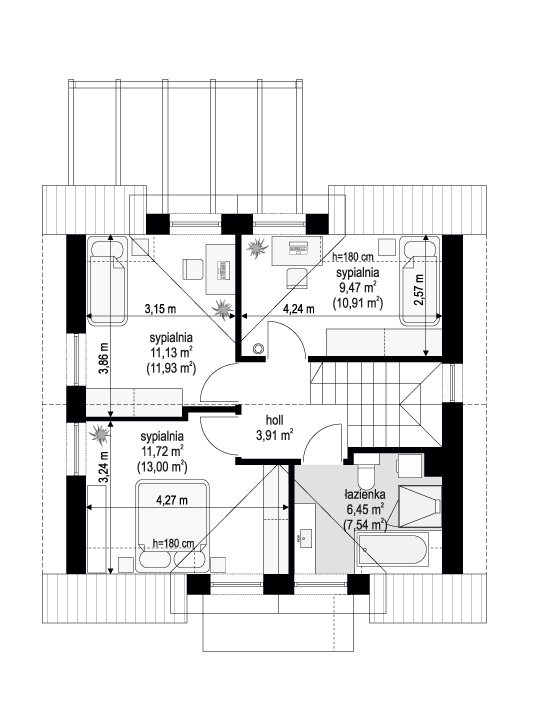
Projekt domu Przyjemny, przeznaczony dla 4-5osobowej rodziny. Budynek parterowy z poddaszem użytkowym, zbudowany na prostokątnym rzucie, przykryty dwuspadowym dachem, z dwiema lukarnami od frontu i od ogrodu. Architektura domu łączy w sobie tradycyjną bryłę z nowoczesnymi detalami. Dwuspadowy symetryczny dach z okapami i szerokimi lukarnami, koresponduje tutaj z nowoczesnym zadaszeniem nad podestem wejściowym, kontrastowymi fragmentami elewacji w narożnikach ścian, oraz lekkim zadaszeniem nad tarasem ogrodowym. Dom charakteryzuje funkcjonalność, spokojna stylistyka, oraz wrażenie solidności i trwałości. Budynek ma niewielkie wymiary i powierzchnię, jednak udało się w nim uzyskać wygodne i funkcjonalne wnętrze, pozwalające komfortowo mieszkać normalnej pełnej rodzinie. Budynek ma powierzchnię zabudowy poniżej 70 m2 i powierzchnię użytkową na obu kondygnacjach poniżej 90 m2 - zatem można go budować na zgłoszenie, czyli uproszczone pozwolenie na budowę. Na parterze domu mamy przestrzeń dzienną salonu, holu ze schodami i kuchni, sporą kotłownię dostępną z przedsionka i dodatkowy pokój. Na poddaszu mieszczą się trzy pokoje sypialne. Poddasze, dzięki wysokiej ścianie kolankowej i lukarnom ma niewielkie skosy. Wracając do salonu - na uwagę zasługuje szerokie przeszklenie otwierające wnętrze na taras i ogród. Zaproponowaliśmy tam drzwi przesuwne, ale można je oczywiście zastąpić tańszymi drzwiami balkonowymi z szerokim oknem do ziemi.Daszek nad tarasem to pergola przykryta poliwęglanowymi płytami. Konstrukcja może być drewniana lub aluminiowa. Można też zastąpić pergolę markizą lub żaglem - dowolnie. Nie jest to element stały budynku. „Przyjemnego” zaprojektowaliśmy jako maksymalnie prosty i łatwy w budowie dom. Jego prosta konstrukcja będzie łatwym zadaniem dla dowolnej ekipy. Nie ma tutaj dużych podciągów, podrażających konstrukcję elementów stalowych, strop jest gęstożebrowy teriva. Ściany z bloczków gazobetonowych. Prosta bryła bez udziwnień i dobre izolacje termiczne przegród dają w efekcie dom energooszczędny. Instalacja c.o. bazowo zasilana jest z kotła gazowego, ale można też zastosować tutaj kocioł na paliwo stałe, albo pompę ciepła. „Przyjemny” to doskonała propozycja dla osób planujących budowę niedużego, funkcjonalnego domu jednorodzinnego, za skończoną określoną kwotę -bez przesady i bujania w obłokach. Dla Inwestorów wolących mieć dom mniejszy, za to lepiej i do końca wykończony. To projekt dla osób chcących architektury ponadczasowej, osadzonej w tradycji w nowoczesnym ujęciu, która nie zestarzeje się wraz z odchodzącymi chwilowymi modami. Zapraszamy !
Istnieje możliwość dostosowania projektu do standardu NF 40.
Dostosowanie projektu do standardu NF40 oznacza inaczej przeprojektowanie izolacji z przegrodach zewnętrznych budynku oraz zmianę instalacji na takie które pozwolą spełnić budynkowi warunki budynku energooszczędnego o współczynniku EUCO poniżej 40 kWh/m2 x rok.
Dodatkowo elementem dostosowania projektu do standardu NF40 jest wykonanie charakterystyki energetycznej wykazującej że budynek jest energooszczędny z uwzględnieniem warunków jego konkretnej lokalizacji na konkretnej działce Inwestora.
Do projektu Przyjemny można zamówić dodatkowe pakiety rysunków, które rozszerzają funkcjonalność domu, poprawiają wygodę użytkowania budynku czy energooszczędność. Warto zwrócić uwagę na: dziennik i tablicę budowy, instalację fotowoltaiczną czy pakiet wentylacja mechaniczna i kominek DGP.
Pracownia MG Projekt posiada odbicie lustrzane projektu.
Przyjemny to propozycja projektu, który pozwoli wybudować dom w krótkim czasie w rozsądnym budżecie.
Zapraszamy do zapoznania się z projektami z tej serii: projekt domu Przyjemny 2, projekt domu Przyjemny 3.
Komentarze: