Projekt domu Ekonomiczny 2 to projekt niedużego parterowego domu jednorodzinnego dla 3-4 osób. Jest to jeden z projektów z serii domków o tej samej nazwie, jest propozycją niewielkiego parterowego budynku, zaprojektowanego na prostokątnym planie, przykrytego dwuspadowym dachem.





100,28 m2 wg PN-70/B-02365
106,85 m2 wg PN-ISO 9836:1997
mechaniczno nawiewno wywiewna
ogrzewanie w projekcie bazowym: kocioł gazowy c,o.
| Ep | 69,6 kWh/(m2) | |
| Ek | 61.6 kWh/(m2 rok) | |
| EUCO | 30,8 kWh/(m2 rok) | 
(Projekt z wentylacją mechaniczną w standardzie)
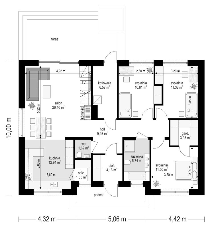
Projekt domu Ekonomiczny 2 jest to projekt niedużego, parterowego domu jednorodzinnego dla 3-4 osób. Powierzchnia użytkowa wynosi 100,28 m2 (kubatura 689 m3). Budynek zwieńczony jest dwuspadowym dachem, który kryje strych do dowolnego wykorzystania. Projekt można zrealizować na działce o minimalnych wymiarach; 20,80 x 18.00 m.
Wejście do domu bardzo urokliwie podkreślono niszą z zadaszonym podcieniem oraz reprezentacyjnym szerokim podestem. Elewacja frontowa jest idealnie symetryczna. Przywołuje swoją symetrią dawną architekturę dworkową. Styl domu Ekonomiczny 2 jest absolutnie współczesny – jest mieszanką nowoczesności z ukłonem w kierunku ponadczasowej tradycji. Patrząc na dom, mamy wrażenie porządku, harmonii i solidności. Taka idea przyświecała projektantom: dom miał być architektonicznie prosty, ale z twistem nowoczesności. Od strony ogrodowej najważniejszymi elementami są: duże okno przesuwne z salonu, otwierające wnętrze na ogród oraz taras będący przedłużeniem pokoju dziennego. Staraliśmy się zaprojektować dom maksymalnie logicznie i praktycznie przy jednoczesnym nowoczesnym odbiorze.Całość domu zwieńczona jest dachem dwuspadowym o kącie nachylenia 35 stopni.
Budynek zawiera w sobie bardzo wygodne wnętrze. Wszystkie potrzebne pomieszczenia znajdują się na poziomie parteru. Dodatkową przestrzeń strychową można adoptować dowolnie. Nasza propozycja to dwa dodatkowe pokoje lub powierzchnia magazynowa. Dwie części domu rozdzielone są pomieszczeniem kotłowni z wyjściem na zewnątrz. Kotłownia oraz kominek w salonie mają wspólny zespół kominowy. Na parterze w części dziennej mamy salon z otwartą kuchnią z półwyspem i spiżarnią. Po drugiej części są trzy sypialnie, w tym główna sypialnia z osobną garderobą oraz w korytarzu wygodną łazienkę.
Konstrukcja budynku jest prosta i niedroga w budowie. Wszystkie prace murarskie i betonowe kończą się na wysokości wieńców nad ścianami parteru. Wyżej mamy układ drewnianych wiązarów dachowych, które są jednocześnie konstrukcją stropu nad parterem jak i więźby dachowej. Taki sposób budowania znacznie upraszcza inwestycję, przyspiesza ją i - co najważniejsze - obniża koszty. W projekcie zastosowano bardzo dobre izolacje i nowoczesne instalacje. Istnieje możliwość dostosowania projektu do standardu NF 40.
Dostosowanie projektu do standardu NF40 oznacza inaczej przeprojektowanie izolacji z przegrodach zewnętrznych budynku oraz zmianę instalacji na takie które pozwolą spełnić budynkowi warunki budynku energooszczędnego o współczynniku EUCO poniżej 40 kWh/m2 x rok.
Dodatkowo elementem dostosowania projektu do standardu NF40 jest wykonanie charakterystyki energetycznej wykazującej że budynek jest energooszczędny z uwzględnieniem warunków jego konkretnej lokalizacji na konkretnej działce Inwestora.
W gotowym projekcie domu można wprowadzać zmiany, a pracownia do każdej dokumentacji dołącza bezpłatnie „Zgodę na zmiany", dzięki której modyfikacje do projektu Ekonomiczny 2 może wprowadzić każdy projektant z uprawnieniami w Polsce.
Do projektu Ekonomiczny 2 można zamówić dodatkowe pakiety rysunków, które rozszerzają funkcjonalność domu, poprawiają wygodę użytkowania budynku czy energooszczędność projektu. Są to na przykład pakiet kotłownia na paliwo stałe, pakiet odkurzacz centralny, tablica budowy czy instalacja solarna.
Ekonomiczny 2 to propozycja projektu dla osób podchodzących do budowy pragmatycznie. Prostota projektu gwarantuje bezproblemową budowę – to ważna informacja szczególnie dla osób planujących budowę metodą gospodarczą.
Pracownia MG Projekt posiada wariant domu w odbiciu lustrzanym.
Zapraszamy do zapoznania się projektami z tej serii: projekt domu Ekonomiczny, projekt domu Ekonomiczny 3.






Komentarze: