Projekt domu Przyjemny 2, przeznaczonego dla 3- 5-osobowej rodziny. Budynek zaprojektowano jako nowoczesną minimalistyczną parterową bryłę z poddaszem użytkowym, przykrytą dwuspadowym bezokapowym dachem z wysokimi ścianami kolankowymi. Dom od frontu zdobi szeroka kubiczna lukarna poddasza, zadaszenie „L” nad podestem wejściowym, oraz narożne okno kuchni wkomponowane między szafkami kuchennymi.





88,96 m2 wg PN-70/B-02365
93,70 m2 wg PN-ISO 9836:1997
mechaniczna z rekuperatorem
ogrzewanie w projekcie bazowym: kocioł gazowy c,o.
| Fundamenty: | betonowe ławy i ściany fundamentowe z bloczków betonowych |
| Ściany zewnętrzne: | ściany murowane - bloczki gazobeton + styropian |
| Strop: | betonowy teriva |
| Elewacje: | tynk cienkowarstwowy |
| Pokrycie dachu: | blacha na rąbek |
| Ep | 67,5 kWh/(m2) | |
| Ek | 55,3 kWh/(m2 rok) | |
| EUCO | 47,2 kWh/(m2 rok) |
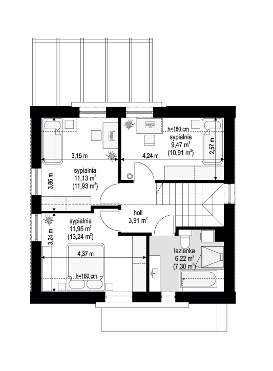
Projekt domu Przyjemny 2, przeznaczony dla 3- 5-osobowej rodziny. Budynek zaprojektowano jako nowoczesną minimalistyczną parterową bryłę z poddaszem użytkowym, przykrytą dwuspadowym bezokapowym dachem z wysokimi ścianami kolankowymi. Dom od frontu zdobi szeroka kubiczna lukarna poddasza, zadaszenie „L” nad podestem wejściowym, oraz narożne okno kuchni wkomponowane między szafkami kuchennymi. Od strony ogrodowej mamy również dużą lukarnę poddasza, oraz lekkie zadaszenie tarasu. Nowoczesny styl domu podkreśla jego maksymalną funkcjonalność i prostotę konstrukcji. Najważniejsza jest tutaj ekonomia i zdrowy rozsądek, ale też jakość zastosowanych materiałów i poszczególnych detali. Nie ma zbędnych elementów - wszystko jest tutaj po coś i spełnia swoją funkcjonalną rolę. Powierzchnia zabudowy domu to poniżej 70 m2, a powierzchnia użytkowa na obu kondygnacjach to niespełna 90 m2 - zatem można budować go na zgłoszenie, czyli uproszczone pozwolenie na budowę. Budynek ma niewielkie wymiary, mimo to udało się w nim uzyskać wygodne i funkcjonalne wnętrze, pozwalające komfortowo mieszkać normalnej pełnej rodzinie. Parter to przede wszystkim przestrzeń dzienna, połączonego salonu, holu ze schodami i kuchni. Mamy tu też dodatkowy pokój, oraz dostępną z przedsionka sporą kotłownię. Na poddaszu mieszczą się trzy pokoje sypialne i łazienka. Pokoje dzięki wysokiej ścianie kolankowej mają niewielkie skosy. W salonie na uwagę zasługuje szerokie przesuwne okno balkonowe, które można też zamienić na tańsze okno balkonowe z dużym naświetlem fix - dające równie dobry efekt. Zadaszenie nad tarasem zaproponowaliśmy w projekcie jako pergolę przykrytą poliwęglanowymi płytami. Można zamienić ją na dowolne inne rozwiązanie: zadaszenie lamelowe, żagiel, lub markizę - wedle decyzji właścicieli. Nie jest to stały element budynku. „Przyjemny 2” to budynek o maksymalnie prostej konstrukcji - łatwy i niedrogi w budowie dom. Nie ma tutaj skomplikowanych podciągów, podrażających konstrukcję elementów stalowych, strop jest gęstożebrowy teriva, a ściany z bloczków gazobetonowych. Budowa będzie łatwym zadaniem dla dowolnej ekipy. Bardzo dobre izolacje termiczne przegród i nowoczesne instalacje, a także nieudziwniona bryła budynku, dają w efekcie dom energooszczędny. Instalacja c.o. bazowo zasilana jest z kotła gazowego, ale można też zastosować tutaj pompę ciepła, albo kocioł na paliwo stałe. „Przyjemny 2” to propozycja dla osób planujących budowę niedużego, funkcjonalnego domu jednorodzinnego, za skończoną określoną kwotę -bez przesady i bujania w obłokach. Dla Inwestorów wolących mieć dom mniejszy, za to lepiej i do końca wykończony. To projekt dla osób lubiących architekturę nowoczesną, ale rozsądną, która będzie ponadczasowa i ładnie się zestarzeje z biegiem lat. Zapraszamy!
Komentarze: