




164,31 m² wg PN-70/B-02365
213,21 m² wg PN-ISO 9836:1997
wentylacja mechaniczna z rekuperacją
ogrzewanie w projekcie bazowym: kocioł gazowy c,o.
| Ep | 67,0 kWh/(m2) | |
| Ek | 60,1 kWh/(m2 rok) | |
| EUCO | 32,0 kWh/(m2 rok) |
(Projekt z wentylacją mechaniczną w standardzie)
Projekt domu Viking 4 to parterowy dom z poddaszem użytkowym zbudowany na planie prostokąta. Nowoczesna architektura domu z atrakcyjną sylwetką idzie tutaj w parze z funkcjonalnym, komfortowym wnętrzem. Budynek jest przykryty dachem dwuspadowym, a garaż trzyspadowym zadaszeniem. Budynek zaprojektowano jako wygodne miejsce do życia dla 4- 6-osobowej rodziny. Powierzchnia użytkowa domu wynosi prawie 165 m2 (kubatura 885 m3). Minimalna wielkość działki na której można zrealizować projekt ma: 21,44 m szerokości x 23,55 m długości. Jest to przyjemna propozycja dla właścicieli średniej szerokości działek.
VIKING 4 bryła budynku
Budynek opiera się na planie w kształcie litery L. Bryłę ozdobiono okładzinami ścian z drewna i płyt włókno-cementowych. Wprowadzono podział na poziome pasy elewacji, co wprowadza ład i właściwe proporcje. Szerokie przeszklenia otwierają wnętrze domu na ogród i podkreślają nowoczesny design. Front domu zaakcentowano podcieniem wejściowym z szerokimi drzwiami z naświetlem oraz narożnym oknem kuchennym. Kształt bryły tworzy frontowy reprezentacyjny placyk wjazdowy. Od strony ogrodu mamy piękne przeszklenia salonu i jadalni oraz wygodny podcień zadaszający częściowo taras. Jest to idealny projekt dla Inwestorów, którzy planują dom w technologii murowanej.
Wnętrze VIKING 4
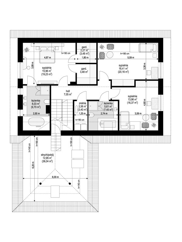
Projekt Viking 4 to dom parterowy z poddaszem użytkowym. Dzięki czemu istnieje zawsze możliwość zagospodarowania kolejnych pomieszczeń. Do domu wchodzimy przeszklonym, otwartym wizualnie przedsionkiem wprost do części dziennej. Hol, salon i jadalnia tworzą część dzienną, która ułatwia spędzanie wspólnie czasu. Obok jadalni mieści się ładna kuchnia ze spiżarką. Z drugiej strony na parterze mamy dodatkowy pokój (gabinet lub sypialnię gościnną), łazienkę, schody. Część gospodarcza to z kolei magazyn, kotłownia i dwustanowiskowy garaż. Na poddasz domu Viking 4 zaprojektowano trzy przestronne sypialnie z garderobami i szafami wbudowanymi, dwie łazienki oraz pralnię. Sypialnia rodziców to oddzielny apartament z garderobami i łazienką. Z podestu schodów wchodzimy na strych nad garażem, mogący pełnić rolę domowego magazyn albo dodatkowego pokoju.
Koszty budowy VIKING 4
Projekt można łatwo dostosować do standardu NF 40. Prosta bryła, dość łatwa w budowie oraz energooszczędne rozwiązania materiałów i ociepleń dają w rezultacie ekonomiczny budynek – zarówno w budowie jak i późniejszej eksploatacji.
W gotowym projekcie domu można wprowadzić zmiany, a pracownia do każdej dokumentacji dołącza bezpłatnie „ Zgodę na zmiany” dzięki której modyfikacje może wprowadzić każdy projektant z uprawnieniami w Polsce. Do projektu można zamówić dodatkowe pakiety rysunków, które rozszerzają funkcjonalność domu i poprawiają wygodę użytkowania domu.
Projekt domu VIKING 4 jest urokliwym, nowoczesnym i komfortowym domem dla swoich przyszłych mieszkańców. W ofercie są również dostępne inne wersje tego projektu: wersja podstawowa (projekt domu Viking), z garażem jednostanowiskowym (projekt domu Viking 2), najmniejsza (projekt domu Viking 3), komfortowa (projekt domu Viking5).






Komentarze: