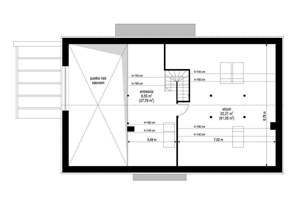
Projekt domu Wymarzony 8 B jest to budynek parterowy przeznaczony dla 4-osobowej rodziny, zbudowany na planie prostokąta, przykryty dwuspadowym bezokapowym dachem, mieszczący salon i trzy pokoje sypialne, pustkę nad salonem z antresolą, oraz obszerną przestrzeń strychową do dowolnego wykorzystania.





118,01 m2 wg PN-70/B-02365
121,49 m2 + strych wg PN-ISO 9836:1997
mechaniczna z rekuperatorem
ogrzewanie w projekcie bazowym: kocioł gazowy c,o.
| Fundamenty: | betonowe ławy i ściany fundamentowe z bloczków betonowych |
| Ściany zewnętrzne: | ściany murowane - bloczki gazobeton + styropian |
| Strop: | monolityczny betonowy |
| Elewacje: | tynk cienkowarstwowy |
| Pokrycie dachu: | blacha na rąbek |
| Ep | 69,3 kWh/(m2) | |
| Ek | 55,2 kWh/(m2 rok) | |
| EUCO | 29,7 kWh/(m2 rok) |
(Projekt z wentylacją mechaniczną w standardzie)
Projekt domu Wymarzony 8 B jest wersją wariantową projektu domu jednorodzinnego z serii „Wymarzony”. Budynek parterowy przeznaczony dla 4-osobowej rodziny, zbudowany na planie prostokąta, przykryty dwuspadowym bezokapowym dachem, mieszczący salon i trzy pokoje sypialne, pustkę nad salonem z antresolą, oraz obszerną przestrzeń strychową do dowolnego wykorzystania. Nowoczesna minimalistyczna architektura domu, łączy się tutaj z funkcjonalnym, praktycznie zaprojektowanym wnętrzem. Budynek nadawać się będzie dobrze zarówno na działkę z częścią ogrodową z tyłu, jak też z wjazdem od południa (z ogrodem z boku lub od frontu ). Dom może być też postawiony kalenicą wzdłuż działki, czyli elewacją boczną do drogi dojazdowej. Wejście od frontu domu podkreślono kubicznym podcieniem przykrywającym podest i schodki. Większość okien w budynku sięga podłogi, dzięki czemu duże przeszklenia dodają bryle atrakcyjności, powiększają wnętrze, oraz otwierają je na otaczający ogród. Wnętrze podzielone zostało na cześć dzienną po lewej stronie, oraz pokoje sypialne po prawej. Pokój dzienny z jadalnią doświetlony z trzech stron, dodatkowo otwiera się na antresolę aż do kalenicy dachu, powiększając wrażenie przestronności. Szerokie wyjście na taras jest dodatkowo podniesione z pomocą górnego naświetla, dając fantastyczny efekt. Do domu wchodzimy wygodnym przedsionkiem do holu, a stamtąd do salonu i kuchni. Kuchnia z wyspą otwiera się na jadalnię. Z kuchni mamy też dostęp do pomieszczenia gospodarczego - pralni i spiżarni z wyjściem na zewnątrz. W części sypialnej mieszczą się trzy sypialnie i łazienka, oraz dodatkowy pokój - domowe biuro. Sypialnia master posiada własną garderobę. Na końcu korytarza domu przewidziano kotłownię - przy zastosowaniu kotła gazowego, jest to sensowna lokalizacja pomieszczenia. Można też adaptować ogrzewanie na paliwo stałe – wówczas w ramach adaptacji kotłownię należy przenieść do pomieszczenia gospodarczego przy kuchni. Nad parterem domu znajduje się sporej wielkości strych, który można zaadaptować na ewentualne poddasze użytkowe. W budynku zastosowano nowoczesne materiały i technologie, energooszczędne instalacje i dobre izolacje przegród zewnętrznych, dzięki czemu budynek będzie niedrogi w utrzymaniu i łatwy w eksploatacji. Konstrukcja domu jest prosta – nie powinien być trudny w budowie. „Wymarzony 8B” to doskonała propozycja dla Inwestorów planujących budowę wygodnego parterowego domu, o nowoczesnej minimalistycznej architekturze, pasującego na trudną działkę. Zapraszamy !
Komentarze: