Projekt domu MG 3 wariant 18 - to projekt niedużego parterowego domu jednorodzinnego z poddaszem użytkowym w modnej architekturze nowoczesnej stodoły, przeznaczonego dla 3-5 osobowej rodziny. Budynek ma prostokątną bryłę, przykrytą dwuspadowym dachem.







89,72 m2 wg PN-70/B-02365
89,72 m2 wg PN-ISO 9836:1997
grawitacyjna
ogrzewanie w projekcie bazowym: kocioł gazowy c,o.
| Fundamenty: | płyta betonowa fundamentowa |
| Ściany zewnętrzne: | ściany murowane - bloczki gazobeton + styropian |
| Strop: | płyta betonowa monolityczna |
| Elewacje: | deska elewacyjna lub tynk cienkowarstwowy |
| Pokrycie dachu: | blacha na rąbek lub dachówka |
| Ep | 67,2 kWh/(m2) | |
| Ek | 54,3 kWh/(m2 rok) | |
| EUCO | 44,7 kWh/(m2 rok) |
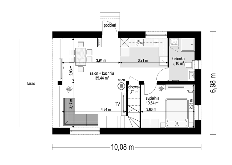
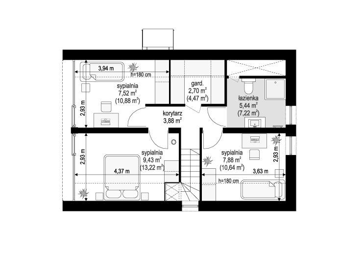
Projekt domu MG 3 wariant 18 - w wersji murowanej. MG3 wariant 18 to projekt niedużego parterowego domu jednorodzinnego z poddaszem użytkowym w modnej architekturze nowoczesnej stodoły, przeznaczonego dla 3-5 osobowej rodziny. Budynek ma prostokątną bryłę, przykrytą dwuspadowym dachem. Dach bazowo ma kąt nachylenia 37 stopni - można go dostosować do wymagań urbanistycznych w razie potrzeby. Ściany zewnętrzne budynku przewidziano z betonu komórkowego izolowanego styropianem. Strop nad parterem zaprojektowano jako płytę betonową monolityczna. Konstrukcja dachu została zaprojektowana w układzie krokwiowym. Wnętrze domu przewidziano z dużą ilością ozdobnych drewnianych elementów wykończeniowych, jak ozdobne drewniane suity, lub drewniana okładzina części ścian. Wnętrze można oczywiście wykończyć też bez drewnianych dodatków - tynkowanymi i malowanymi ścianami i sufitami. Główną atrakcją wnętrza domu jest oczywiście przeszklona ściana salonu, łącząca przestrzeń dzienną z tarasem i otaczającym ogrodem. Dzięki otwartemu wnętrzu parteru z dużymi przeszkleniami, ten nieduży 90-metrowy dom sprawia wrażenie znacznie większego. Poza częścią dzienną z salonem i kuchnią, pozostałe pomieszczenia we wnętrzu to - na parterze : dodatkowy pokój ( sypialnia lub gabinet ), łazienka i schowek gospodarczy, oraz na poddaszu : trzy sypialnie, łazienka i garderoba. Instalacje grzewcze : w budynku przewidziano zasilanie instalacji c.o. kotłem gazowym dwufunkcyjnym, umieszczonym w pomieszczeniu łazienki, lub zamiennie niedużą pompę ciepła powietrze-woda, również umieszczoną w łazience. Posiadamy też wariant ogrzewania elektrycznego, z grzejnikami elektrycznymi i klimatyzatorami z funkcją grzania. Dodatkowe źródło ciepła może stanowić kominek typu koza umieszczony w salonie. Wentylacja w budynku zaprojektowana jest jako mechaniczna z rekuperacją. Można też zastosować tradycyjną wentylację grawitacyjną. Wszystkie przegrody zewnętrzne : ściany, dach - zaprojektowano jako bardzo dobrze ocieplone. Budynek ma zwartą bryłę i niedużą kubaturę. Budynek jest energooszczędny - tani i prosty w eksploatacji. Elewacje zewnętrzne domu bazowo zaproponowano z tynku cienkowarstwowego na styropianie. Dom można również obłożyć elewacją drewnianą - dowolnie, wedle gustu przyszłych właścicieli. MG 3 wariant 18 to doskonała propozycja dla osób planujących budowę prostego, niedużego domu, funkcjonalnego w użytkowaniu i ekonomicznego w eksploatacji. Dom MG 3 należy do serii projektów z naszej firmy produkującej gotowe domy modułowe : DMH - Dream Mobil House / Dream Wood House. Wersję murowaną kierujemy do osób, które chcą samodzielnie wybudować swój przyszły dom, według tego projektu, w tradycyjnej technologii murowanej. Zapraszamy !
Komentarze: