Projekt domu MG 2 wariant 15 B - w wersji drewnianej szkieletowej. MG2 wariant 15 B drewniany to projekt niedużego parterowego domu jednorodzinnego, przeznaczonego dla 3-4 osobowej rodziny. Budynek ma prostokątną bryłę, przykrytą dwuspadowym dachem. Dach bazowo ma kąt nachylenia 20 stopni, ale można w łatwy sposób zmienić go na wyższy kąt.






80,36 m2 wg PN-70/B-02365
82,82 m2 wg PN-ISO 9836:1997
grawitacyjna
ogrzewanie w projekcie bazowym: kocioł gazowy c,o.
| Fundamenty: | płyta betonowa fundamentowa |
| Ściany zewnętrzne: | szkielet drewniany + wełna mineralna |
| Strop: | więźba drewniana |
| Elewacje: | deska elewacyjna |
| Pokrycie dachu: | blacha na rąbek |
| Ep | 66,5 kWh/(m2) | |
| Ek | 55,5 kWh/(m2 rok) | |
| EUCO | 48,5 kWh/(m2 rok) |
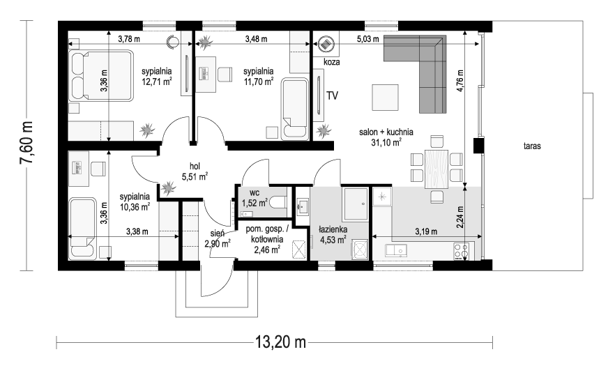
Projekt domu MG 2 wariant 15 B - w wersji drewnianej szkieletowej. MG2 wariant 15 B drewniany to projekt niedużego parterowego domu jednorodzinnego, przeznaczonego dla 3-4 osobowej rodziny. Budynek ma prostokątną bryłę, przykrytą dwuspadowym dachem. Dach bazowo ma kąt nachylenia 20 stopni, ale można w łatwy sposób zmienić go na wyższy kąt - na przykład 30 lub 35 stopni, jeśli jest taka konieczność. Konstrukcję domu przewidziano jako szkieletową drewnianą, wykonaną z drewna konstrukcyjnego C24 i KVH. Konstrukcja dachu została zaprojektowana w układzie krokwiowym. Krokwie wsparte są na środkowej ścianie konstrukcyjnej i drewnianym podciągu w salonie. Zarówno pokój dzienny jak i pokoje sypialne mają sufity otwarte aż do wysokości kalenicy, dzięki czemu zyskujemy we wnętrzu większą wysokość pomieszczeń i większą przestrzeń. Główną atrakcją wnętrza domu jest oczywiście przeszklona ściana szczytowa, łącząca salon z tarasem i otaczającym ogrodem. Dzięki tak ukształtowanemu wnętrzu ten nieduży 80-metrowy dom sprawia wrażenie znacznie większego. Poza częścią dzienną, pozostałe pomieszczenia we wnętrzu to : trzy wygodne sypialnie, łazienka, oddzielna toaleta, pomieszczenie gospodarcze – kotłownia i przedsionek z szafami. Instalacje grzewcze w budynku przewidziano zasilane kotłem gazowym dwufunkcyjnym, umieszczonym w pomieszczeniu kotłowni, lub zamiennie niedużą pompą ciepła powietrze-woda, również umieszczoną w kotłowni. Posiadamy też wariant ogrzewania elektrycznego, z grzejnikami elektrycznymi i klimatyzatorami z funkcją grzania. Dodatkowe źródło ciepła może stanowić kominek typu koza umieszczony w salonie. Wentylacja w budynku zaprojektowana jest jako mechaniczna z rekuperacją. Można też zastosować tradycyjną wentylację grawitacyjną. Wszystkie przegrody zewnętrzne : ściany, dach - zaprojektowano jako bardzo dobrze ocieplone, izolacją z wełny mineralnej o wysokiej lambdzie. Dodatkowo można zwiększyć izolację ścian o warstwę wełny drzewnej - zapobiegającej przegrzewaniu wnętrza. Budynek ma zwartą bryłę i niedużą kubaturę. Jest to budynek energooszczędny - tani i prosty w budowie eksploatacji. Elewacje zewnętrzne domu bazowo zaproponowano z okładziny drewnianej. Dom można również wykończyć tynkiem cienkowarstwowym - dowolnie, wedle gustu przyszłych właścicieli. MG2 wariant 15 B drewniany - to doskonała propozycja dla osób planujących budowę prostego, niedużego domu, funkcjonalnego w użytkowaniu i ekonomicznego w eksploatacji. Dom MG2 należy do serii projektów z naszej firmy produkującej gotowe domy modułowe : DMH - Dream Mobil House / Dream Wood House. Projekt typowy w wersji szkieletowej drewnianej, kierujemy do osób, które chcą samodzielnie wybudować swój przyszły dom z lokalnym wykonawcą, według tego projektu. Natomiast dla osób chcących zamówić kompleksowo gotowy dom w jednaj firmie, zapraszamy do współpracy z nami w ramach naszej firmy DMH. Zapraszamy !
Komentarze: