Projekt domu Dom na zgrabnej 3, jest budynek zaprojektowany jako parterowy z poddaszem użytkowym przeznaczonym dla 4-5cioosobowej rodziny, w stylistyce bryły „domu-stodoły”. Zaprojektowany na planie prostokąta, z wykończeniem dachu i elewacji w jednym materiale, z wysoką ścianą kolankową i ozdobnymi zadaszeniami nad wejściem i nad tarasem.







135,27 m2 wg PN-70/B-02365
143,71 m2 + garaż wg PN-ISO 9836:1997
mechaniczna z rekuperatorem
ogrzewanie w projekcie bazowym: kocioł gazowy c,o.
| Fundamenty: | betonowe ławy i ściany fundamentowe z bloczków betonowych |
| Ściany zewnętrzne: | ściany murowane - bloczki gazobeton + styropian |
| Strop: | monolityczny betonowy |
| Elewacje: | blacha na rąbek + deska elewacyjna |
| Pokrycie dachu: | blacha na rąbek |
| Ep | 68,8 kWh/(m2) | |
| Ek | 56,2 kWh/(m2 rok) | |
| EUCO | 48,2 kWh/(m2 rok) |
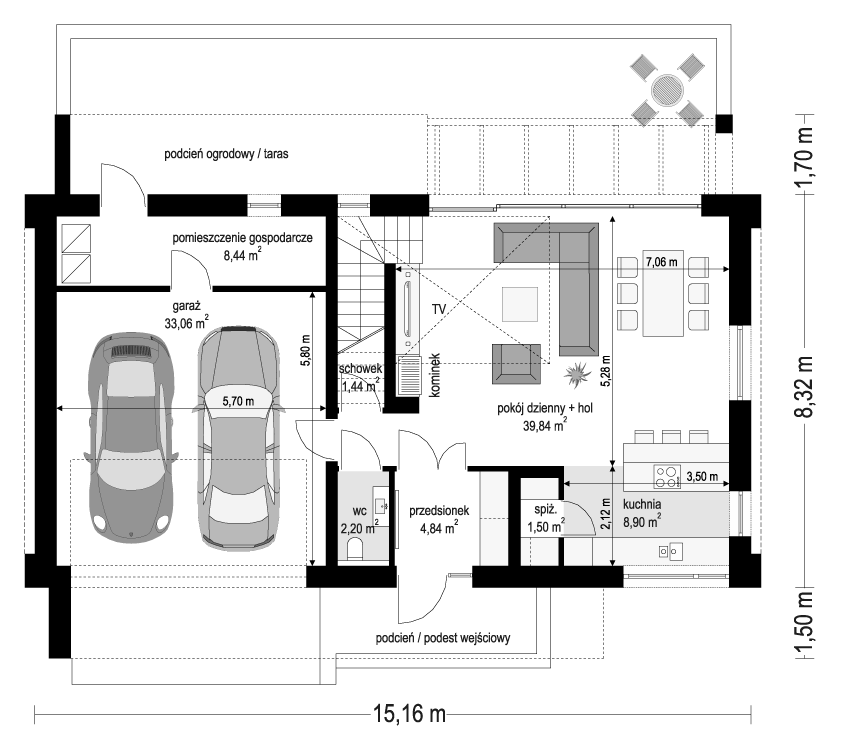
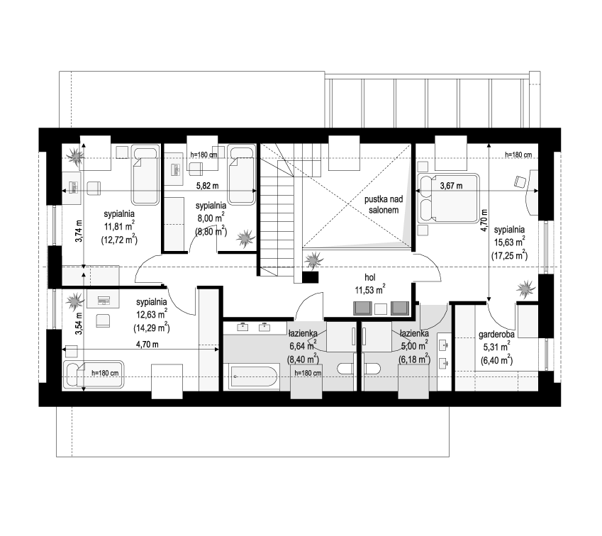
Projekt domu Dom na zgrabnej 3, jest budynek zaprojektowany jako parterowy z poddaszem użytkowym przeznaczonym dla 4-5cioosobowej rodziny, w stylistyce bryły „domu-stodoły”. Zaprojektowany na planie prostokąta, z wykończeniem dachu i elewacji w jednym materiale, z wysoką ścianą kolankową i ozdobnymi zadaszeniami nad wejściem i nad tarasem. Stylistyka budynku jest nowoczesna, minimalistyczna, z oszczędnym językiem detali. Bryła budynku wykończona jest jednym materiałem - blachą na rąbek na ścianach i połaciach dachów, z kontrastowymi szczytami domu z okładziną drewnianą. Od strony ogrodowej cała połać dachu może być przeznaczona do ułożenia paneli fotowoltaicznych. Duże przeszklenia otwierają wnętrze na otaczający ogród i dodają bryle dynamicznego wyglądu. Wejście do budynku od strony elewacji frontowej podkreślone zostało kontrastowym wykończeniem ścian , oraz oświetleniem liniowym zainstalowanym w zadaszeniu nad podestem wejściowym. Fasada frontowa jest raczej zamknięta, natomiast elewacja tylna otwiera szerokim przeszkleniem wnętrze domu na taras i otaczający dom ogród. Wnętrze domu podzielone zostało funkcjonalnie na przestrzeń dzienną i cześć garażowo-gospodarczą na parterze, oraz pokoje domowników na poddaszu. Parter i poddasze zostały połączono pustką - antresolą nad salonem. Do domu wchodzimy wygodnym przedsionkiem z szafami, wprost do części dziennej połączonych pomieszczeń salonu, holu i kuchni. Na poddaszu przewidziano cztery pokoje sypialne, w tym apartament master z własną łazienka i garderobą. Budynek ma prostą konstrukcję, dzięki czemu będzie łatwy i niedrogi w budowie, oraz późniejszej eksploatacji. Bardzo dobre izolacje termiczne, prosta bryła, oraz nowoczesne wydajne instalacje dają w połączeniu budynek energooszczędny. Ogrzewanie budynku bazowo zasilane jest kotłem gazowym kondensacyjnym, lub pompą ciepła. Można tutaj też zastosować kocioł na paliwo stałe. „Dom na Zgrabnej 3” to propozycja wygodnego nowoczesnego domu jednorodzinnego, o oryginalnej minimalistycznej architekturze. Dom dla Inwestorów chcących się trochę wyróżnić i mieć dom nieprzeciętny, ciekawszy od sąsiadów. Zapraszamy!
Komentarze: