Projekt domu Dom na Zgrabnej 2, budynek parterowy z poddaszem użytkowym przeznaczonym dla 4- 5-osobowej rodziny, oparty na planie prostokąta, z dwuspadowym dachem, z wysoką ścianą kolankową, bez okapów i ozdobnymi zadaszeniami nad wejściem i nad tarasem. Dom zaprojektowano w nowoczesnej stylistyce, z wykorzystaniem minimalistycznych detali.







121,61 m2 wg PN-70/B-02365
127,09 m2 + garaż wg PN-ISO 9836:1997
mechaniczna z rekuperatorem
ogrzewanie w projekcie bazowym: kocioł gazowy c,o.
| Fundamenty: | betonowe ławy i ściany fundamentowe z bloczków betonowych |
| Ściany zewnętrzne: | ściany murowane - bloczki gazobeton + styropian |
| Strop: | monolityczny betonowy |
| Elewacje: | tynk cienkowarstwowy |
| Pokrycie dachu: | blacha na rąbek |
| Ep | 68,9 kWh/(m2) | |
| Ek | 56,1 kWh/(m2 rok) | |
| EUCO | 48,1 kWh/(m2 rok) |
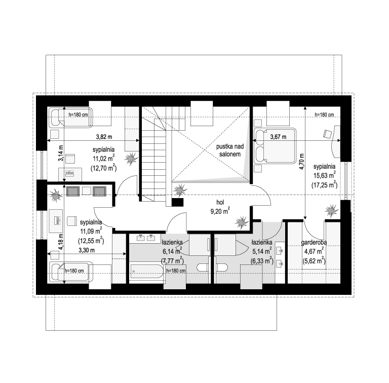
Projekt domu Dom na Zgrabnej 2, jest budynek parterowy z poddaszem użytkowym przeznaczonym dla 4- 5-osobowej rodziny, oparty na planie prostokąta, z dwuspadowym dachem, z wysoką ścianą kolankową, bez okapów i ozdobnymi zadaszeniami nad wejściem i nad tarasem. Dom zaprojektowano w nowoczesnej stylistyce, z wykorzystaniem minimalistycznych detali. Czystość i prostotę podkreślają tutaj jasne białe fasady skontrastowane z szarymi wstawkami, oraz fragmentami drewnianych okładzin. Dwuspadowy dach pokryty blachą na rąbek stojący zamyka kompozycję bryły. Od strony ogrodowej cała połać dachu może być przeznaczona dla paneli fotowoltaicznych. Duże przeszklenia otwierają wnętrze na otaczający ogród i dodają bryle dynamicznego wyglądu. Drzwi wejściowe do budynku w elewacji frontowej zaprojektowano na środku, między narożnym oknem kuchennym i schowanymi pod zadaszeniem wrotami garażowymi. Część wejściową podkreśla liniowe oświetlenie zadaszenia i szeroki podest ze schodami. Od strony ogrodu taras jest osłonięty zadaszeniem, nadając przydomowej przestrzeni przytulności i kameralnego klimatu. Jednocześnie taras łączy się szerokim przeszkleniem z przestrzenią dzienną. Wnętrze domu podzielono na część dzienną - z salonem, kuchnią i holem, cześć garażowo-gospodarczą, oraz część sypialną z trzema pokojami na poddaszu. Parter i poddasze zostały wizualnie połączone pustką /antresolą nad salonem. Do domu wchodzimy przez dużą wygodną sień, wprost do części dziennej. Centralnym elementem salonu jest ściana telewizyjno-kominkowa przy klatce schodowej. Na poddaszu przewidziano trzy sypialnie. Apartament rodziców jest oddzielony i posiada osobną łazienkę i garderobę. Budynek jest bardzo prosty konstrukcyjnie -będzie łatwy i niedrogi w budowie i późniejszej eksploatacji. Dobre izolacje termiczne przegród zewnętrznych, prosta bryła, w połączeniu z wydajnymi instalacjami grzewczymi dają w połączeniu budynek energooszczędny. Ogrzewanie budynku bazowo zasilane jest kotłem gazowym kondensacyjnym, lub pompą ciepła. Można tutaj też zastosować kocioł na paliwo stałe. „Dom na Zgrabnej 2” to propozycja wygodnego niedużego domu jednorodzinnego, o prostej minimalistycznej i ponadczasowej architekturze. Domu bezproblemowego i łatwego w użytkowaniu. Zapraszamy!
Komentarze: