• Animacja
  • Komentarze (0)
  • Dodatki i gratisy

Projekt domu Dom na Parkowej 5

7,470 zł 5,976 zł
Najniższa cena z 30 dni przed obniżką: 5 696 zł
Koszt wysyłki: gratis
Dostępność: od ręki
Koszt realizacji:
?
Jest to etap, w którym łączy się zakres etapów stanu surowego zamkniętego (RSSZ).
587 594 zł
Powierzchnia domu:
?
Powierzchnia pomieszczeń w ich wysokościach użytkowych z odliczeniem pomieszczeń gospodarczych, technicznych i pomocniczych, takich jak: garaż, kotłownia, pomieszczenie gospodarcze.
109,07 m2
Min szerokość działki:
22,30 m
Min długość działki:
24,85 m

Projekt domu Dom na Parkowej 5 jest to kolejny projekt z popularnej serii „Domów na Parkowej”, czyli wersja z dachem o większym kącie nachylenia, oraz węższej bryle i pojedynczym garażu. Dom jest mniejszy od wersji bazowej i nadaje się na węższą działkę.

Zobacz całą serię projektów: Dom na Parkowej

Rzuty:

Dom na Parkowej 5 - rzut parteru

Dom na Parkowej 5 - rzut parteru

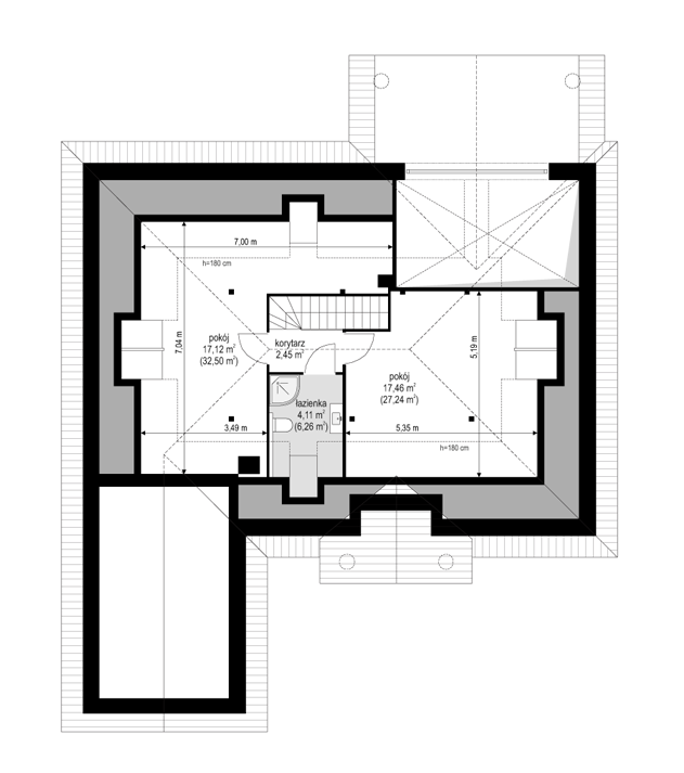
Dom na Parkowej 5 - rzut poddasza

Dom na Parkowej 5 - rzut poddasza

Sytuacja:

Dom na Parkowej 5 - sytuacje

Dom na Parkowej 5 - sytuacje
UWAGA:

Elewacje:

Dom na Parkowej 5 - elewacje

Dom na Parkowej 5 - elewacje

Dom na Parkowej 5 - elewacje

Dom na Parkowej 5 - elewacje

Dom na Parkowej 5 - elewacje

Dom na Parkowej 5 - elewacje

Dom na Parkowej 5 - elewacje

Dom na Parkowej 5 - elewacje
Dane techniczne projektu:
Kubatura
?
Objętość pomieszczeń wraz z elementami konstrukcji (ścianami, stropami).
Powierzchnia garażu
Powierzchnia domu
?
Powierzchnia pomieszczeń w ich wysokościach użytkowych z odliczeniem pomieszczeń gospodarczych, technicznych i pomocniczych, takich jak: garaż, kotłownia, pomieszczenie gospodarcze.
Powierzchnia wiaty
Powierzchnia zabudowy bez podcieni
?
Powierzchnia budynku w dolnej kondygnacji, po obrysie ścian zewnętrznych, czyli powierzchnia jaką budynek zajmuje na działce.
Powierzchnia netto
?
Powierzchnia wszystkich pomieszczeń w ich wysokościach użytkowych (od wys.około 1,8 m).
Powierzchnia tarasu
Powierzchnia zabudowy z podcieniami
Powierzchnia całkowita
?
Powierzchnia wszystkich kondygnacji po obrysie ścian zewnętrznych wraz z powierzchnią ścian, z odliczeniem skosów poniżej "około 180 cm" (dotyczy domów z poddaszem).
Powierzchnia strychu
Powierzchnia użytkowa
?
Powierzchnia pomieszczeń w ich wysokościach użytkowych z odliczeniem pomieszczeń gospodarczych, technicznych i pomocniczych, takich jak: garaż, strych, kotłownia, pomieszczenie gospodarcze, spiżarnia, schowek, szatnia, sień.
Powierzchnia dachu
Nachylenie dachu
Wysokość domu
?
Wysokość budynku od zera projektu do najwyższego miejsca kalenicy.
Wysokość pomieszczeń
?
Wysokość netto pomieszczeń parteru budynku od wykończonej podłogi do sufitu.
Szerokość budynku
Długość budynku
Minimalna szerokość działki
Minimalna długość działki
Typ domu
Liczba kondygnacji
Piwnica
Garaż
Rodzaj dachu
?
Dach w domu jednorodzinnym może mieć formę: czterospadowy, dwuspadowy, dwuspadowy z naczółkami, płaski, wielospadowy.
Technologia wykonania
?
Technologia i styl, w którym wykonany jest dom
Styl
?
Technologia i styl, w którym wykonany jest dom.
Poddasze
Liczba łazienek
Liczba pokoi
Liczba użytkowników
Wentylacja
?
Rodzaje wentylacji zastosowane w projekcie
Ogrzewanie
?
Rodzaj ogrzewania zastosowanego w domu
671,00 m3
21,24 m2
109,07 m2
N/D
170,45 m2
113,46 m2 + garaż 21,24 m2 + strych 41,14 m2
N/D
190,62 m2
212,45 m2
41,14 m2

109,07 m² wg PN-70/B-02365

113,46 m² + garaż wg PN-ISO 9836:1997

271,80 m2
35 stopni
7,31 m (7,61 m z podmurówką)
2,8
14,30 m
17,85 m
22,30 m
24,85 m
jednorodzinny
parterowy z poddaszem użytkowym
nie
jednostanowiskowy
wielospadowy
murowany
dworek, tradycyjny
poddasze do adaptacjii
3
6
5

grawitacyjna

ogrzewanie w projekcie bazowym: kocioł gazowy c,o.

Materiały:
  • Fundamenty betonowe ławy i ściany fundamentowe z bloczków betonowych
  • Ściany zewnętrzne ściany murowane - pustaki porotherm 25 + styropian + tynk cienkowarstwowy
  • Strop monolityczny żelbetowy nad parterem
  • Elewacje tynk cienkowarstwowy
  • Pokrycie dachu dachówka
Koszty realizacji:
Jak liczymy koszty w naszych projektach
?
Kosztorys wykonywany jest w oparciu o katalogi nakładów rzeczowych, z aktualnymi cenami z Sekocenbudu. Przyjmujemy w kosztorysie budowę systemem gospodarczym, przy średnich cenach robocizny i materiałów, oraz sprzętu i transportu według średniej krajowej i dotyczy to wszystkich etapów realizacji. Uwaga: Podane koszty są wartościami netto.
Stan surowy otwarty
?
Stan surowy otwarty zawiera konstrukcję budynku, bez okien i drzwi, bryła budynku przekryta dachem, bez pokrycia docelowego, czyli na dachu jest folia przeciwwiatrowa na łatach i kontrłatach, lub papa na deskowaniu pełnym;
Stan surowy zamknięty
?
Jest to konstrukcja budynku jak w RSSO, wraz z oknami i drzwiami zewnętrznymi, oraz pokryciem dachowym;
Roboty wykończeniowe
?
W tym etapie uwzględniono:Instalacje wewnętrzne; Instalację elektryczną bez osprzętu; Ceramikę sanitarną i armaturę łazienkową; Okładziny ścian i podłóg;Tynki ścienne zewnętrzne i wewnętrzne; Roboty malarskie;Wszelkie izolacje; Parapety i cokoły;Orynnowanie i obróbki blacharskie, itp. Roboty nie uwzględnione:Przyłącza do budynku; Otoczenie wokół domu, czyli tarasy, podjazdy, dojścia; Opaski wokół budynku; Ogrodzenie działki;Meble i wyposażenie wnętrz; Balustrady i wykończenie schodów; Dodatkowe instalacje z Pakietów do projektów domów.
Realizacja pod klucz
?
Jest to etap, w którym łączy się zakres etapów stanu surowego zamkniętego (RSSZ).
Instalacje
?
Kwota uwzględniona w robotach wykończeniowych
Koszt pokrycia dachu
?
Kwota uwzględniona w stanie surowy zamkniętym
Koszt stolarki
?
Kwota uwzględniona w stanie surowy zamkniętym
219 185 zł
295 172 zł
292 423 zł
587 594 zł
77 218 zł
45 449 zł
30 538 zł
Koszty utrzymania:

Charakterystyka Energetyczna

 

Ep 65,8 kWh/(m2)
Ek 53,9 kWh/(m2 rok)
EUCO 44,3 kWh/(m2 rok)
Opis projektu:

Projekt Dom na Parkowej 5 to jednorodzinny, parterowy z poddaszem użytkowym. Powierzchnia użytkowa domu wynosi 109,07 m2 (kubatura 671 m3).  Bryła budynku zwieńczona jest czterospadowym dachem. Projekt można zrealizować na działce o minimalnych wymiarach 22,30 x 24,85 m.

Architektura projektu Dom na Parkowej 5

Architektura domu to nawiązanie do amerykańskich willi z przedmieść oraz do polskiego dworku, ale w nowocześniejszym ujęciu. Bryła budynku jest prostokątna, przekryta czterospadowym dachem z dobudowanym wystającym nieco do przodu garażem. Kąt nachylenia dachu wynosi 35 stopni, co pozwoli sprostać ostrzejszym warunkom zabudowy. Dodatkowo zyskujemy nad parterem większe poddasze użytkowe ( właściwie strych, który można zaadaptować na poddasze użytkowe jeśli jest taka potrzeba). W ten sposób przed domem tworzy się większa i bardziej reprezentacyjna część frontowa. Wejście domu zostało podkreślone pięknym, frontowym portalem z szerokimi drzwiami z naświetlami po bokach. Od strony ogrodowej mamy z kolei duży, zadaszony taras oraz szerokie przeszklenia łączące salon z tarasem i ogrodem.

Wnętrze projektu Dom na Parkowej 5

Wnętrze domu podzielono funkcjonalnie na trzy części: dzienną, nocną i gospodarczo – garażową. Z ładnego przedsionka przechodzimy szerokimi drzwiami na wprost do części dziennej z salonem, kuchnią i holem. Z części dziennej przechodzimy do sypialni – mamy tutaj trzy sypialnie oraz łazienkę. Sypialnie dzieci mają wbudowane szafy, sypialnia rodziców – garderobę. Z przedsionka możemy przedostać się do pomieszczenia gospodarczego i garażu. Na strychu mamy miejsce do zaadaptowania na poddasze składające się z dwóch pokoi i łazienki. Nasz projekt to doskonała propozycja dla osób szukających niewielkiego domu, ale z zachowaniem estetyki architektonicznej.

Koszty budowy projektu Dom na Parkowej 5

Dom na Parkowej 5 dzięki prostej bryle i konstrukcji będzie niedrogi w realizacji. Nasza pracownia na etapie  projektowania uwzględniła nowoczesne instalacje, energooszczędne materiały. Dzięki temu eksploatacja domu w późniejszych latach nie będzie obarczona niespodziewanymi wydatkami. Istnieje możliwość dostosowania projektu do standardu NF 40

W gotowym projekcie można wprowadzać zmiany, a pracownia do każdej dokumentacji dołącza bezpłatnie „Zgodę na zmiany", dzięki której modyfikacje do projektu Dom na Parkowej 5 może wprowadzić każdy projektant z uprawnieniami w Polsce.

Do projektu można zamówić dodatkowe pakiety rysunków, które rozszerzają funkcjonalność domu, poprawiają wygodę użytkowania budynku czy energooszczędność projektu. Są to na przykład pakiet kotłownia na paliwo stałe, dziennik budowy, instalacja solarna czy instalacja fotowoltaiczna.

 Zapraszamy do zapoznania się z pełną ofertą pracowni MG Projekt: projekt domu Dom na Parkowejprojekt domu Dom na Parkowej 2projekt domu Dom na Parkowej 3projekt domu Dom na Parkowej 4projekt domu Dom na Parkowej 6projekt domu Dom na Parkowej 7 A, projekt domu Dom na Parkowej 7 B.

Dodatki do projektu:

Warianty Domu:

Komentarze:

Nasi partnerzy
© MGProjekt 2026 Pracownia Architektoniczna